EasyManua.ls Logo

YASKAWA VS-656MR5 - 15.7 Internal Block Diagram

YASKAWA VS-656MR5
305 pages
Print Icon
To Next Page IconTo Next Page
To Next Page IconTo Next Page
To Previous Page IconTo Previous Page
To Previous Page IconTo Previous Page
Loading...
15.7 Internal Block Diagram
15 -29
15.7 Internal Block Diagram
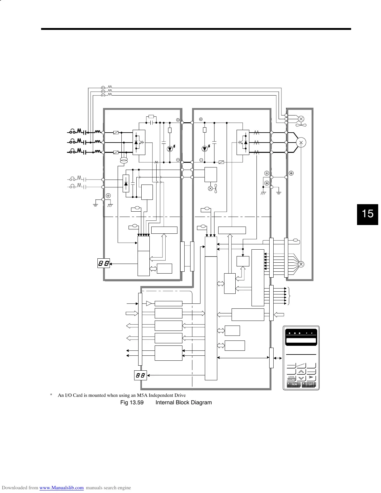
The M5 Drive internal block diagram is shown below.
A2/t
Speed reference (AD)
Sequence outputs
(DO)
Error codes
(DO)
Speedometer signals
Load meter signals
(AO)
P1
Control
power
supply
(RCC)
N1
Gate driver
Detector
(AD)
CPU
TS
TS
PROM
5CN
P1
Power
supply
(RCC)
N1
51CN
P/
N/
Internal cooling
fan
Gate driver
TS
TS
Detector
(AD)
DSP
Detector
(AD)
Analog speed reference (±10 V)
Sequence inputs (14 points)
Sequence outputs (10 points)
EEPROM
(Constants)
Motor encoder
signal outputs
Speedometer output (10 V)
Load meter output (10 V)
PG
pulse
proces-
sor
(DIO)
12-bit digital references
(12 points)
1CN
2CN
TS
3CN
Error codes (4 points)
I/O Card (See note.)
6CN
U
V
W
U/T1
V/T2
W/T3
N/
P/
R/L1
S/L2
T/L3
A1/r
VS-656MR5 Converter
VS-626M5 Inverter
++
Cooling fan
Motor
12-bit digital refer-
ences (DI)
Digital Operator
PG
+
PROM
Z1
Z2
Z3
R
S
T
1MCCB 1MC L
3MCCB
2MCCB 2MC
r
t
Sequence inputs
(DI)
CPU
DRIVEFWDREV
REMOTE
REF
SEQ
DIGITAL OPERATOR
JVOP132
REMOTE
LOCAL
PRGM
DRIVE
DSPL
RESET
JOG
ENTER
DATA







































































































































RUN








































































































































































































































































STOP












































































































































REMOTE
LOCAL
* An I/O Card is mounted when using an M5A Independent Drive
Fig 13.59 Internal Block Diagram
15

Table of Contents

Related product manuals