EasyManua.ls Logo

YASKAWA VS-656MR5 - 7.2 Winding Selection Motor Standard Connections

YASKAWA VS-656MR5
305 pages
Print Icon
To Next Page IconTo Next Page
To Next Page IconTo Next Page
To Previous Page IconTo Previous Page
To Previous Page IconTo Previous Page
Loading...
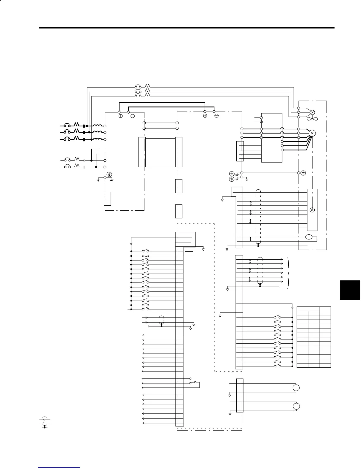
7.2 Winding Selection Motor Standard Connections
7-3
7.2 Winding Selection Motor Standard Connections
As shown in the following diagram, this system requires winding selection signals in addition to speed refer-
ence signals such as FWD and REV. In winding selection, a special magnetic contactor is used that can operate
directly from the Inverter.
3MCCB
R
S
T
1MCCB
1MC L
P/ N/
VS656MR5
R/L1
S/L2
T/L3
P1
N1
5CN
P1
N1
51CN
VS626M5
r
t
2MCCB
2MC
A1/r
A2/t
1CN
P/
N/
3CN
52CN
2CN
+5V
0V
4,5,6
1,2,3
THSA
THSB
SS
8
7
9
1
2
3
4
5
6
7
8
9
11
12
10
PG
TS
P
PA
*PA
PB
*PB
PC
*PC
16
17
18
19
14
15
P
P
P
PAO
*PAO
PBO
*PBO
PCO
*PCO
13
14
15
16
11
12
P
P
P
SS
17
1CN
TLL(INC)
SSC(SV)
19,20,21
22,23
24,25
EXTCOM0
*
2
24VCOM
0VCOM
6CN
6
7
8
9
10
11
12
RDY
EMG
FWD
REV
TLH
13
14
5
15
16
17
18
RST
CHW
DAS
PPI
ORT
LGR
MGR
3
4
2
33
34
35
SCOM
0V
SS
ZSPD
36
37
38
39
40
46
41
TDET
TLE
ORG
ORE
CHWE
TALM
FLTL
SDET
AGR
42
COM1
43
44
45
FLT
26
27
28
29
FC0
FC1
FC2
FC3
30
COM2
BCD
BIN
1
1
2
2
4
4
8
8
1
2
4
8
P
r1
t1
IM
X
Y
Z
r1
t1
U
V
2CN
10
20
40
80
100
200
400
800
10
20
40
80
16
32
64
128
256
512
1024
2048
EXTCOM
*
2
24VCOM
0VCOM
31
32
33
19
20
21
22
23
24
25
26
27
28
29
30
D1
D2
D3
D4
D5
D6
D7
D8
D9
D10
D11
D12
6CN
47
48
49
50
SM
0V
0V
LM
U/T1
V/T2
W/T3
+24 V
CC
CA1
CA2
10
11
12
13
17
18
2
4
6
13
14
15
16
9
11
7
W
Z1
Z2
Z3
SM
LM
3-phase
200 VAC
*
1
1-phase
200 VAC
Special bus bar
P1N1 power
supply cable
Flat cable
Not used
Digital
Operator
(optional)
Ground to 100 or less.
Not used
MCCB: Wiring circuit breaker
MC: Magnetic contactor
L: AC reactor
24-V external
power supply
*3
Speed reference
I/O card
3-phase 200 VAC
*
1
Magnetic contactor
for winding selection
Motor
Cooling fan
Ground to 100 or less.
Motor encoder
signal output
12-bit digital
reference
3-digit 2-digit
*3
24-V external
power supply
*1 In the 400-V class, 3-phase 400 VAC is used.
*2 6CN EXTCOM0 and 1CN EXTCOM are isolated inter-
nally.
*3 Sequence input common is the external common con-
tact.
indicates shielded twisted-pair cable.
Fig 7.1 Standard Connections Diagram (for 200 V Class Winding Selection Motor)
7

Table of Contents

Related product manuals