EasyManua.ls Logo

YASKAWA VS-656MR5 - 8.2 Standard Connection Diagram

YASKAWA VS-656MR5
305 pages
Print Icon
To Next Page IconTo Next Page
To Next Page IconTo Next Page
To Previous Page IconTo Previous Page
To Previous Page IconTo Previous Page
Loading...
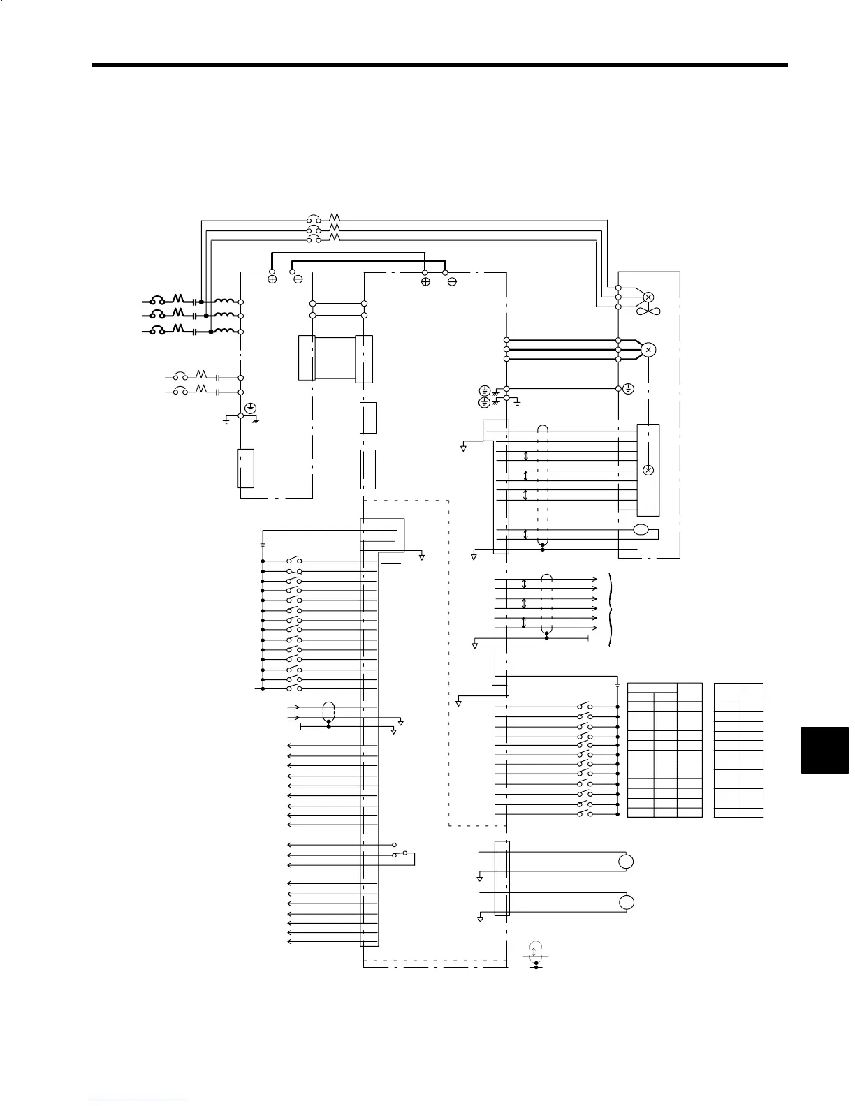
8.2 Standard Connection Diagram
8-3
8.2 Standard Connection Diagram
Figure 8.2 shows the standard connections to use a motor encoder signal with the load shaft and motor shaft
linked in a 1:1 configuration. Figure 8.3 shows the standard connections to use the load shaft encoder signal.
In both cases, the example shows an stand-alone drive (CIMR-M5Ajjjj).
5CN
51CN
VS626M5
3CN
52CN
2CN
+5V
0V
4,5,6
1,2,3
THSA
THSB
SS
8
7
9
1
2
3
4
5
6
7
8
9
11
12
10
PG
TS
P
PA
:PA
PB
:PB
PC
:PC
16
17
18
19
14
15
P
P
P
PAO
:PAO
PBO
:PBO
PCO
:PCO
13
14
15
16
11
12
P
P
P
17
1CN
TLL(INC)
SSC(SV)
19,20,21
22,23
24,25
EXTCOM0
*
2
24VCOM
0VCOM
6CN
6
7
8
9
10
11
12
RDY
EMG
FWD
REV
TLH
13
14
5
15
16
17
18
RST
CHW
DAS
PPI
ORT
LGR
MGR
3
4
2
33
34
35
SCOM
0V
SS
ZSPD
36
37
38
39
40
46
30
TDET
TLE
ORG
ORE
CHWE
TALM
COM2
SDET
AGR
42 COM1
43
44
45
FLT
26
27
28
29
FC0
FC1
FC2
FC3
41 FLTL
BCD
BIN
1
1
2
2
4
4
8
8
1
2
4
8
P1
N1
P1
N1
3MCCB
R
S
T
1MCCB
1MC L
P/
N/
VS656MR5
R/L1
S/L2
T/L3
r
t
2MCCB
2MC
A1/r
A2/t
1CN
P/ N/
U
V
IM
BCD
BIN
1
1
2
2
4
4
8
8
10
20
40
80
100
200
400
800
10
20
40
80
16
32
64
128
256
512
1024
2048
10
20
40
80
100
200
400
16
32
64
128
256
512
1024
19
20
21
22
23
24
25
26
27
28
29
30
D1
D2
D3
D4
D5
D6
D7
D8
D9
D10
D11
D12
EXTCOM
*
2
24VCOM
0VCOM
31
32
33
6CN
47
48
49
50
SM
0V
0V
LM
SM
LM
P
W
Z1
Z2
Z3
U/T1
V/T2
W/T3
SS
3-phase
200
VAC
*
1
1-phase
300 VAC
Ground to 100 or less.
Not used
MCCB: Wiring circuit breaker
MC: Magnetic contactor
L: AC reactor
24-V external
power supply
*3
P1N1 power
supply cable
Special bus bar
*1 In the 400-V class, 3-phase 400 VAC is used.
*2 6CN EXTCOM0 and 1CN EXTCOM are isolated internally.
*3 Sequence input common is the external common contact.
indicates shielded twisted-pair cable.
I/O card
*3
24-V external
power supply
12-bit digital refer-
ence
Stop position
reference
Motor encoder signal output
3-digit 2-digit 3-digit
Sign Sign
Ground to 100 or less.
3-phase
200
VAC
*
1
Motor
Cooling fan
Flat cable
Not used
Digital Op-
erator (op-
tional)
Speed reference
Fig 8.3 Standard Connection Diagram for 200-V Class User-set Position Stop Control
Using a Motor Encoder
8

Table of Contents

Related product manuals