EasyManua.ls Logo

YASKAWA VS-656MR5 - Page 67

YASKAWA VS-656MR5
305 pages
Print Icon
To Next Page IconTo Next Page
To Next Page IconTo Next Page
To Previous Page IconTo Previous Page
To Previous Page IconTo Previous Page
Loading...
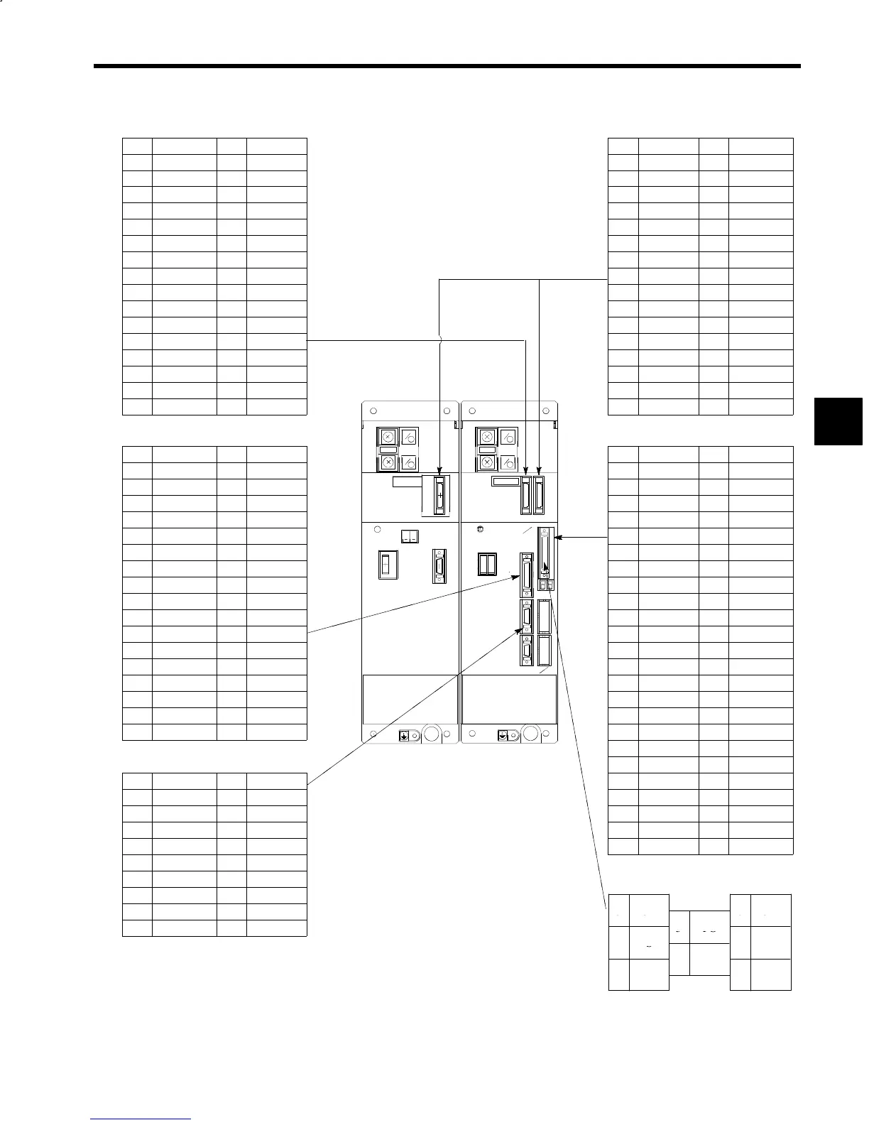
3.4 Wiring Control Circuit Signals
3 -27
51CN 5CN, 52CN
34 +24VIN 33 34 33 +24VIN
32 /EXT1 31 ESP0 32 ESP0 31 /EXT1
30 /EXT2 29 ALM± 30 ALM± 29 /EXT2
28 ESP1 27 ALMC 28 ALMC 27 ESP1
26 CONFLT 25 CONRDY 26 CONRDY 25 CONFLT
24 CONRST 23 AXRUN 24 AXRUN 23 CONRST
22 +24V 21 +24V 22 +24V 21 +24V
20 +24V 19 +24V 20 +24V 19 +24V
18 +24V 17 +24V 18 +24V 17 +24V
16 +24V 15 +24V 16 +24V 15 +24V
14 0V 13 0V 14 0V 13 0V
12 0V 11 0V 12 0V 11 0V
10 0V 9 0V 10 0V 9 0V
8 0V 7 0V 8 0V 7 0V
6 *S 5 BAT+ 6 BAT+ 5 *S
4 S 3 BAT 4 BAT 3 S
2 0V 1 0V 2 0V 1 0V
1CN
P
+
P
+
6CN (for stand-alone drives)
36
MNTR2 18 0V
N
N
50 LM 25 0VCOM
35 MNTR1 17 SS
N
N
−−
49 0V 24 0VCOM
34 VCC 16 *PBO
5CN
51CN/52CN
48 0V 23 24VCOM
33 0VCOM 15 PBO 47 SM 22 24VCOM
32 24VCOM 14 *PAO
CHARGE
CHARGE
4CN
46 TALM 21 EXTCOM0
31 EXTCOM 13 PAO
8
CHARGE
8
CHARGE
4CN
6CN
45 FLTCOM 20 EXTCOM0
30 D12 12 *PCO
P1
8
8
P1
1CN
44 FLTNC 19 EXTCOM0
29 D11 11 PCO
N1
N1
1CN
43 FLTNO 18 MGR
28 D10 10 BAT+
1CN
42 COM1 17 LGR
27 D9 9 BAT
1CN
2CN
8CN
41 FLTL 16 ORT
26 D8 8 ALMC 40 CHWE 15 PPI
25 D7 7 ALM
3CN
39 ORE 14 CHW
24 D6 6 ALM+
3CN
38 ORG 13 RST
23 D5 5 ESP1
9CN
10CN
37 TLE 12 SSC(SV)
22 D4 4 ESP0
9CN
1
0
C
N
36 TDET 11 TLL(INC)
21 D3 3 /EXT2 35 SDET 10 TLH
20 D2 2 /EXT1 34 AGR 9 REV
19 D1 1 +24VIN 33 ZSPD 8 FWD
Converter
Inverter
32 7 EMG
2CN
Converter Inverter
31 6 RDY
20 10 +24V 30 COM2 5 DAS
19 *PB 9 THSB 29 FC3 4 0V
18 PB 8 THSA 28 FC2 3 SCOM
17 *PA 7 SS 27 FC1 2 SS
16 PA 6 +5V 26 FC0 1 +15V
15 *PC 5 +5V
14 PC 4 +5V
4CN
(
for NC s
y
stems
)
13 CA2 3 0V
4CN
(for
NC
systems)
12 CA1 2 0V
3SH 8SH
11
CC 1 0V
3
SH
5
8
FG
SH
2
S
5
7
FG
S
2
S
4
7
R
S
1
*S
4
6
R
*S
1
S
6
S
Note: Terminal arrangement is as when the connectors on the PC board are viewed from the front of the unit.
Fig 3.18 Terminal Arrangement of Control Signal Connector
3

Table of Contents

Related product manuals