EasyManua.ls Logo

YASKAWA VS-656MR5 - Page 298

YASKAWA VS-656MR5
305 pages
Print Icon
To Next Page IconTo Next Page
To Next Page IconTo Next Page
To Previous Page IconTo Previous Page
To Previous Page IconTo Previous Page
Loading...
Appendix
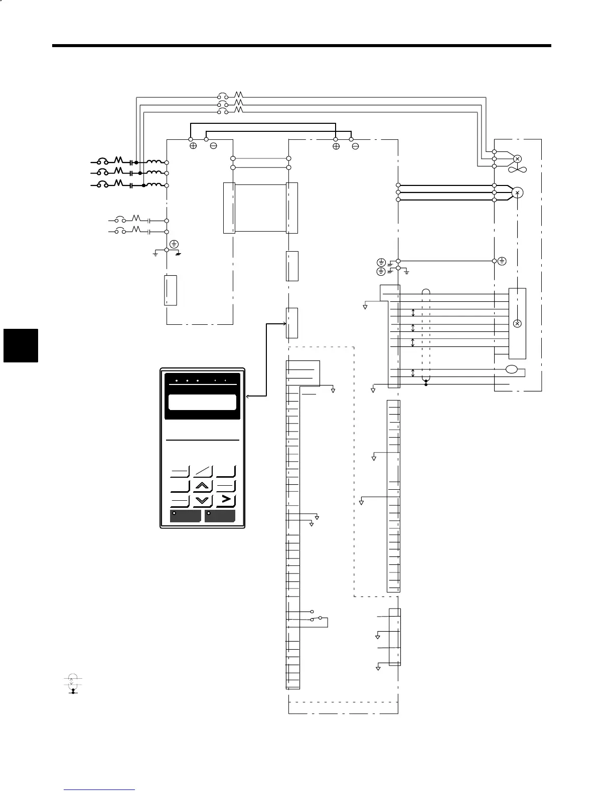
15.6.1 Independent Operation for Speed Control Using a Digital Operator
15 -26
3MCCB
Special busbar
R
S
T
1MCCB
1MC L
P/ N/
VS656MR5
R/L1
S/L2
T/L3
P1
N1
5CN
P1
N1
51CN
VS626M5
1-phase
200 VAC
r
t
2MCCB
2MC
A1/r
A2/t
(Grounded to
100 or less.)
Not used
1CN
P/
N/
Flat cable
3CN
P1N1 power
supply cable
Not used
52CN
Motor
Cooling fan
U
V
IM
2CN
+5V
0V
4,5,6
1,2,3
THSA
THSB
SS
8
7
9
1
2
3
4
5
6
7
8
9
11
12
10
PG
TS
P
PA
:PA
PB
:
PB
PLC
:PLC
16
17
18
19
14
15
P
P
P
PAO
:PAO
PBO
:PBO
PLCO
:
PLCO
13
14
15
16
11
12
SS
17
1CN
TLL(INC)
SSC(SV)
19,20,21
22,23
24,25
EXTCOM0
24VCOM
0VCOM
6CN
6
9
10
11
12
RDY
EMG
FWD
REV
TLH
13
14
5
15
16
17
18
RST
CHW
DAS
PPI
ORT
LGR
MGR
3
4
2
33
34
35
SCOM
0V
SS
ZSPD
36
37
38
39
40
42
TDET
TLE
ORG
ORE
CHWE
COM1
SDET
AGR
43
44
45
FLT
26
27
28
29
FC0
FC1
FC2
FC3
30
COM2
I/O Card
MCCB: Molded Case Circuit Breaker
MC: Magnetic Contactor
L: AC reactor
Indicated shielded twisted-pair cable
*: 400-V class: 3-phase 400 VAC
3-phase
200 VAC*
1
41
46
FLTL
TALM
W
Z1
Z2
Z3
LOCAL
REMOTE
DIGITAL OPERATOR
JVOP132
DSPL
DATA
ENTER
RESET
RUN
STOP
DRIVE
PRGM
JOG
DRIVE
FWD REV REMOTE
SEQ
Digital Operator
REF
LOCAL
REMOTE
U/T1
V/T2
W/T3
D1
D2
D3
D4
D5
D6
19
20
21
22
23
24
D7
25
0VCOM
33
24VCOM
32
EXTCOM
31
D8
D9
D10
D11
26
27
28
29
D12
30
6CN
SM
47
0V
48
LM
50
0V
49
7
8
P
3-phase
200 VAC*
1
(Grounded to
100 or less.)
Fig 15.29 Stand-alone Operation Using Digital Operator
15

Table of Contents

Related product manuals