EasyManua.ls Logo

YASKAWA VS-656MR5 - Page 46

YASKAWA VS-656MR5
305 pages
Print Icon
To Next Page IconTo Next Page
To Next Page IconTo Next Page
To Previous Page IconTo Previous Page
To Previous Page IconTo Previous Page
Loading...
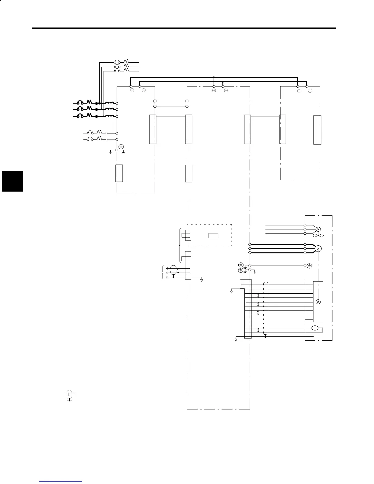
Wiring
3-6
Ground
(100 or less)
3-Phase
200 VAC
Connection Bus Bar
P1N1 Power Cable
Flat Cable
Motor
Cooling Fan
MCCB: Molded-case Circuit Breaker
MC: Magnetic Contactor
L: AC Reactor
Single-phase
200 VAC
3-Phase
200 VAC
Not used
Digital
Operator
(Option)
3MCCB
R1
S1
T1
R
S
T
1MCCB 1MC
L
P/ N/
VS-656MR5
R/L1
S/L2
T/L3
P1
N1
5CN
P1
N1
51CN
VS-626M5
52CN
51CN
52CN
r
t
2MCCB
2MC
A1/r
A2/t
1CN
P/ N/
P/ N/
3CN
For Terminal Unit
For Monitoring Zero-speed
4CN
4
6
R
*S
SW1
1CN
7
8
13
14
17
P
ALM
-
ALMC
PAO
*PAO
SS
U/T1
V/T2
W/T3
R1
S1
T1
Z1
Z2
Z3
U
V
W
IM
2CN
+5V
0V
4,5,6
1,2,3
PA
*PA
PB
*PB
PC
*PC
16
17
18
19
14
15
P
THSA
THSB
SS
8
9
7
1
2
3
4
5
6
7
8
9
11
12
10
PG
TS
P
P
P
YENET1200 Card
For ST No. Setting
indicates shielded twisted-pair wires.
Servo Unit
P
*1 For 400 V class, 3-phase 400 VAC is used.
*2 Refer to the manual of NC machine for connection of
NC machine and servo unit.
Flat Cable
*1
*1
*2
Ground
(100 or less)
Fig 3.4 Connection Diagram for NC System, 200 V Class External Heatsink Cooling
Type
3

Table of Contents

Related product manuals