EasyManua.ls Logo

AT&T 75 - Routing Cables from Switch Cabinet to Cross-Connect Field

AT&T 75
593 pages
Print Icon
To Next Page IconTo Next Page
To Next Page IconTo Next Page
To Previous Page IconTo Previous Page
To Previous Page IconTo Previous Page
Loading...
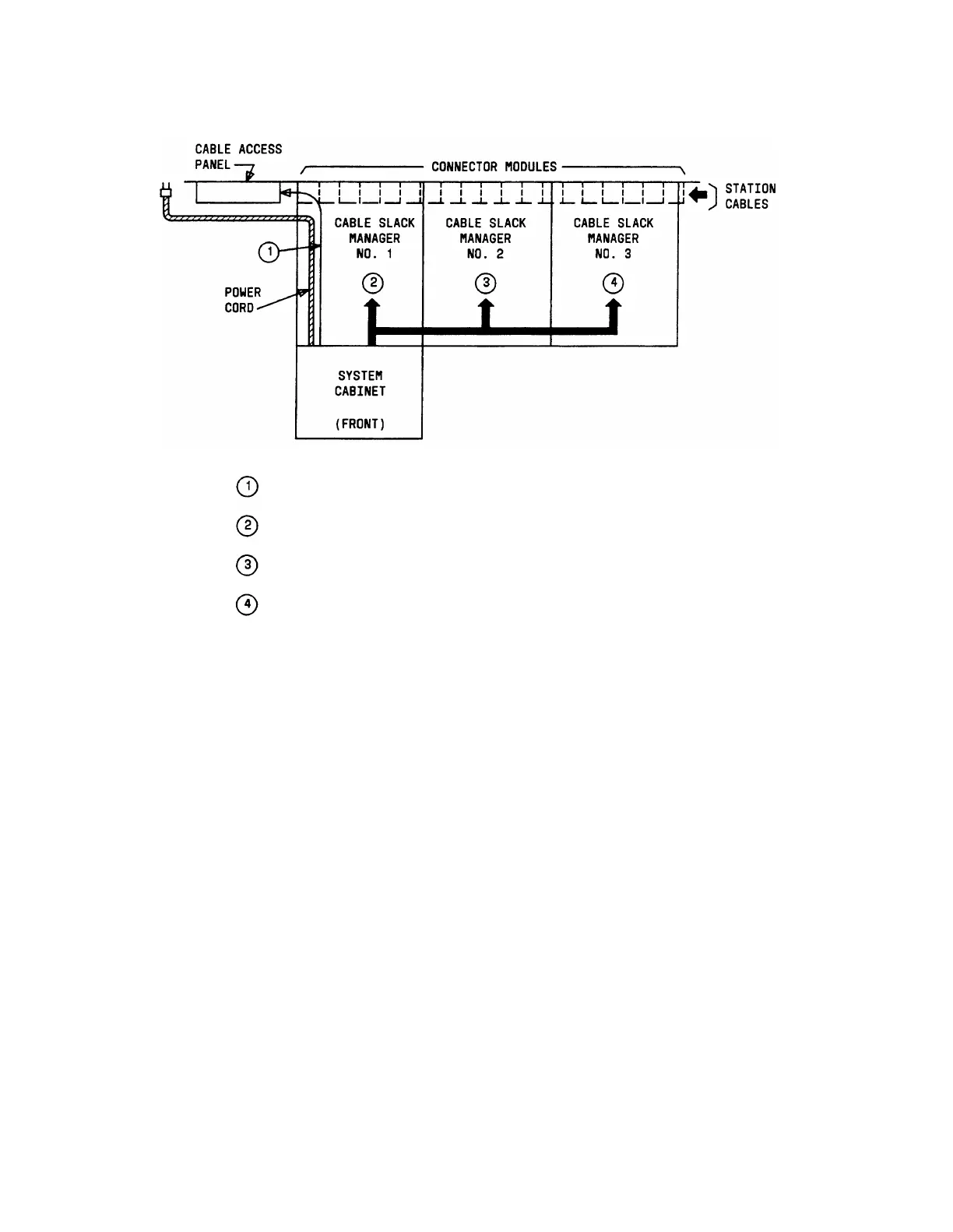
Z100-TYPE HARDWARE
CABLES RUN FROM SWITCH CABINET TO CABLE ACCESS
PANEL.
CABLES RUN FROM SWITCH CABINET TO FIRST SIX
CONNECTOR MODULES.
CABLES RUN FROM SWITCH CABINET TO SECOND SIX
CONNECTOR MODULES.
CABLES RUN FROM SWITCH CABINET TO THIRD SIX
CONNECTOR MODULES.
Figure 2-44. Cable Routing From Switch Cabinet to Cross-Connect Field and
Cable Access Panel
Routing Cables From Switch Cabinet to Cross-Connect Field
The following guidelines should be followed when routing cables from the switch cabinet to
the cross-connect field.
Each individual port cable should be first connected to the switch cabinet and then
routed from the switch cabinet along the front trough of the cable slack manager to
the front of the connector module where the port cable is to be installed.
Enough slack should be left at the cabinet to allow dressing of the cables (Figure 2-
45).
The cable is then routed perpendicularly from the front trough to the wall along side
a row of five columns in the cable slack manager (see Note).
Note: Retainers mounted on the columns keep the cable from protruding above
the top of the base of the cable slack manager.
The length of cable required to reach from the floor to the port connecting unit in
the connector module is then determined.
One to two inches (2.5 to 5 cm) of slack should be left between the connector module
and the floor to allow the jack panel to open.
2-63

Table of Contents