EasyManua.ls Logo

Bartec MAK TIGER 3003 - Dimensions; Installation

Bartec MAK TIGER 3003
216 pages
Print Icon
To Next Page IconTo Next Page
To Next Page IconTo Next Page
To Previous Page IconTo Previous Page
To Previous Page IconTo Previous Page
Loading...
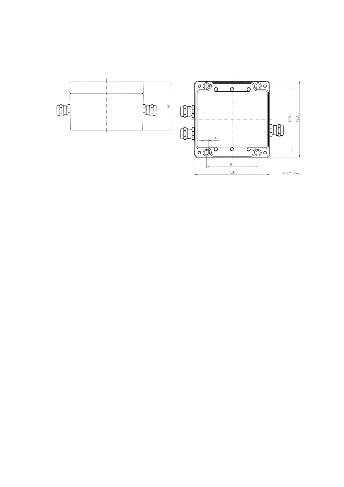
Barcode reading unit type 6723-10
116
Measuring System MAK TIGER 3003 Service manual, SA 131128, 10.03.2020
19.2 Dimensions
19.3 Installation
Installation location:
Position at a suitable location not subject to major vibrations near the bar code
reader, taking due account of the length of its cable.
It must be possible to attach the connection leads in the bar code reader unit
when installed.
Installation:
Affix lower section of housing with 4 x M6 mounting bolts. See section on di-
mensions for hole spacing and bolt length.
To install, undo the four bolts in the top housing section and remove the top
housing section.

Table of Contents

Other manuals for Bartec MAK TIGER 3003

Related product manuals