EasyManua.ls Logo

Bartec MAK TIGER 3003 - Wiring

Bartec MAK TIGER 3003
216 pages
Print Icon
To Next Page IconTo Next Page
To Next Page IconTo Next Page
To Previous Page IconTo Previous Page
To Previous Page IconTo Previous Page
Loading...
ULTRASAMPLER® sample collection system
181
Measuring System MAK TIGER 3003 Service manual, SA 131128, 10.03.2020
26.8.2 Wiring
Proximity switch
NPN Order.No. U495593
Ground switching
Controller 1)
MAK compact-Con-
troller
6942-10
US-Controller
6771-31
brown (bn) + 24V_S
IN 1 8
+ 24 V clamp 25
blue (bu) AGND
IN 1 - 8
GND clamp 34
black (bk)
Free inputs IN 1 - 8
Free inputs
IN 1 8
clamp 26 ... 33
Proximity switch
PNP Order.No. U496004
Positiv switching
Controller 1)
MAK Compact-Con-
troller
6942-10
I/O-Box 6753,
Inputs
brown (bn)
IN 1 8
+ 24 V
blue (bu)
IN 1 - 8
GND
black (bk)
Free inputs IN 1 - 8
Free inputs
IN 1-8
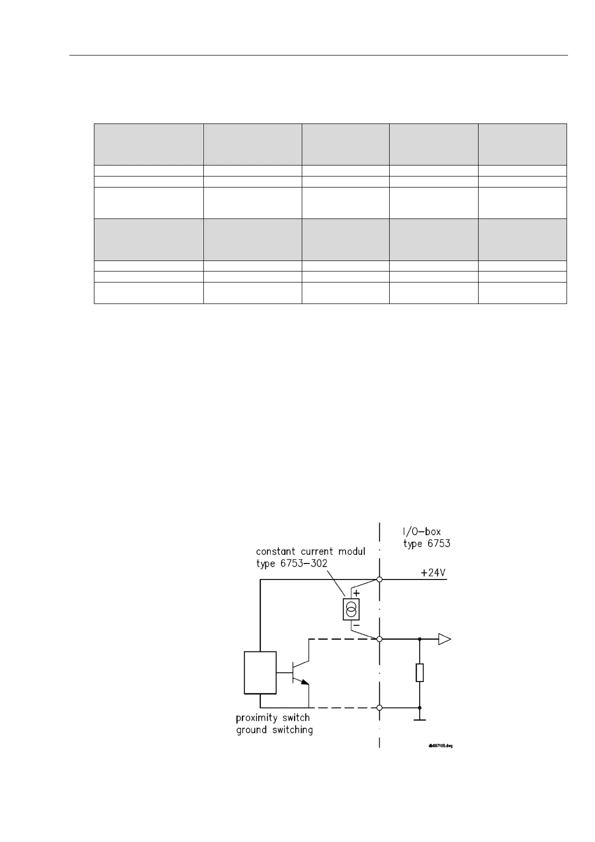
Note:
If a ground-switching proximity switch is to be connected to a device (eg I / O
box 6753) with positive-switching inputs, this can be done by interposing the
constant current module Type 6753-302 as a "pull up" between + 24 V and
the corresponding input (see Fig. 1)
The digital inputs of the compact controller 6942-10 are configured as "posi-
tive switching" by default.
By changing the configuration (see Type 6744-10) each input can be
customized
also be switched to "mass switching".
Picture 1

Table of Contents

Other manuals for Bartec MAK TIGER 3003

Related product manuals