EasyManua.ls Logo

Bartec MAK TIGER 3003 - Dimensions;Installation

Bartec MAK TIGER 3003
216 pages
Print Icon
To Next Page IconTo Next Page
To Next Page IconTo Next Page
To Previous Page IconTo Previous Page
To Previous Page IconTo Previous Page
Loading...
Barcode reader type 6727-40 Series A
120
Measuring System MAK TIGER 3003 Service manual, SA 131128, 10.03.2020
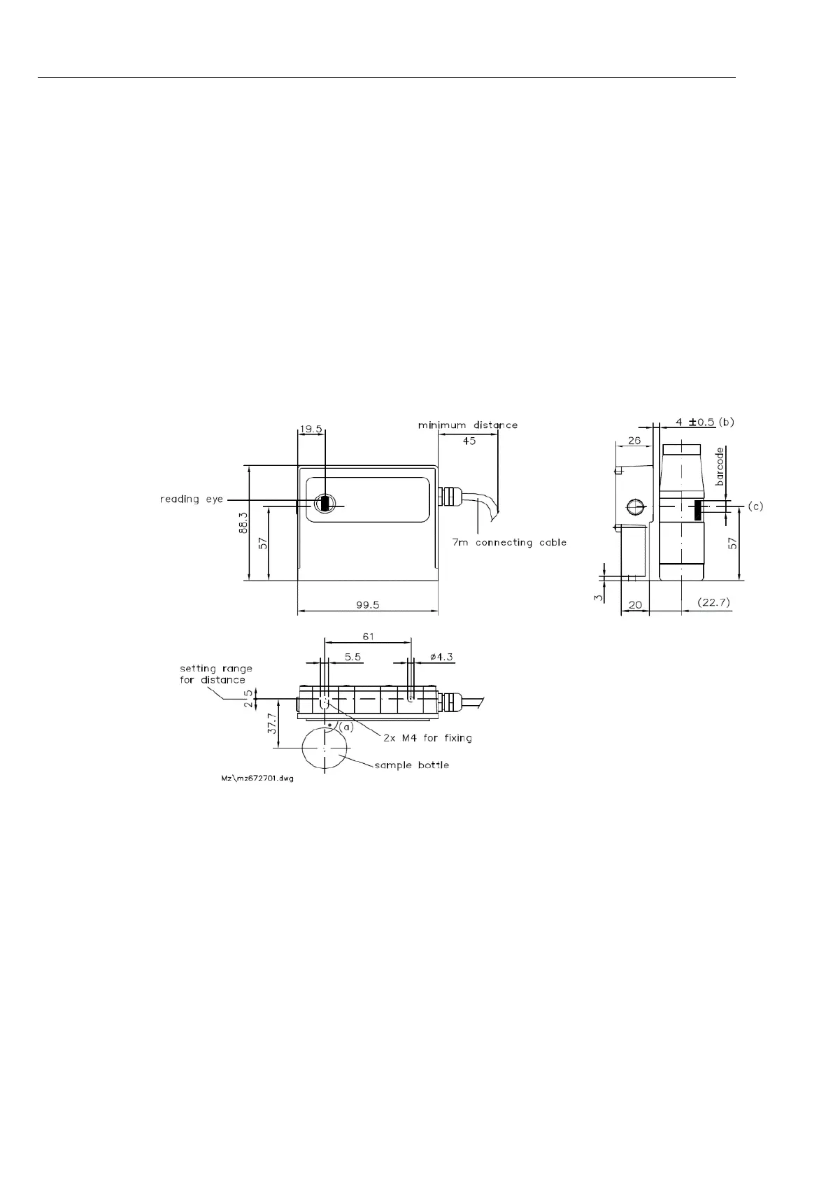
20.2 Dimensions/Installation
Install the bar code reader as illustrated in the diagrams below.
The following points are important:
The scanner eye must be at right angles to the sample bottle axis (a).
There should be a distance of approx. 4 mm (b) between the bar code reader
and the sample bottle. A 4-mm hexagon wrench or the shank of a 4-mm twist
drill are examples of possible aids which can be used. The distance can be
reduced gradually to as little as 2 mm if the bar code reading cannot be guar-
anteed to be reliable.
The optical axis (transmitter light) of the bar code reader must be roughly in
the middle of the bars in the bar code (c).

Table of Contents

Other manuals for Bartec MAK TIGER 3003

Related product manuals