EasyManua.ls Logo

Bartec MAK TIGER 3003 - Page 126

Bartec MAK TIGER 3003
216 pages
Print Icon
To Next Page IconTo Next Page
To Next Page IconTo Next Page
To Previous Page IconTo Previous Page
To Previous Page IconTo Previous Page
Loading...
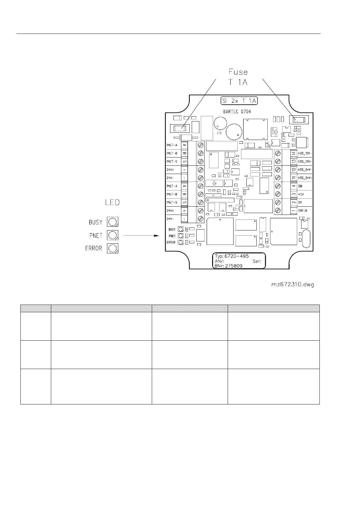
Barcode reading unit type 6723-10
118
Measuring System MAK TIGER 3003 Service manual, SA 131128, 10.03.2020
Status display messages and their meaning
LED
Display
Apparent fault
Remedial action
BUSY
LED BUSY
Flashes after switch-on (approx. 1
Hz).
The processor system is running.
LED off:
Internal fault in
processor system
- Bar code reading unit may
need to be reconfigured
- Fault may need to be read
out via P-NET service channel
P-NET
P-NET ON
LED flashes via P-NET on the bar
code reading unit on write access
or read access.
LED off:
Bar code reading unit is
not eliciting any response
from P-NET
- Check P-NET connections
(A,B,S); P-NET may be defec-
tive
- Notify service centre
ERROR
POWER ON
LED when 5 V DC is applied to the
processors.
(The 5 V are routed through to the
display by the processor)
LED off:
Absence of voltage sup-
ply for the processors
- Check for presence of 24 V
DC
- Check connection cable
- Check fuses

Table of Contents

Other manuals for Bartec MAK TIGER 3003

Related product manuals