EasyManua.ls Logo

Extra 300LT - Page 509

Extra 300LT
551 pages
Print Icon
To Next Page IconTo Next Page
To Next Page IconTo Next Page
To Previous Page IconTo Previous Page
To Previous Page IconTo Previous Page
Loading...
1
1
2
2
3
3
4
4
D D
C C
B B
A A
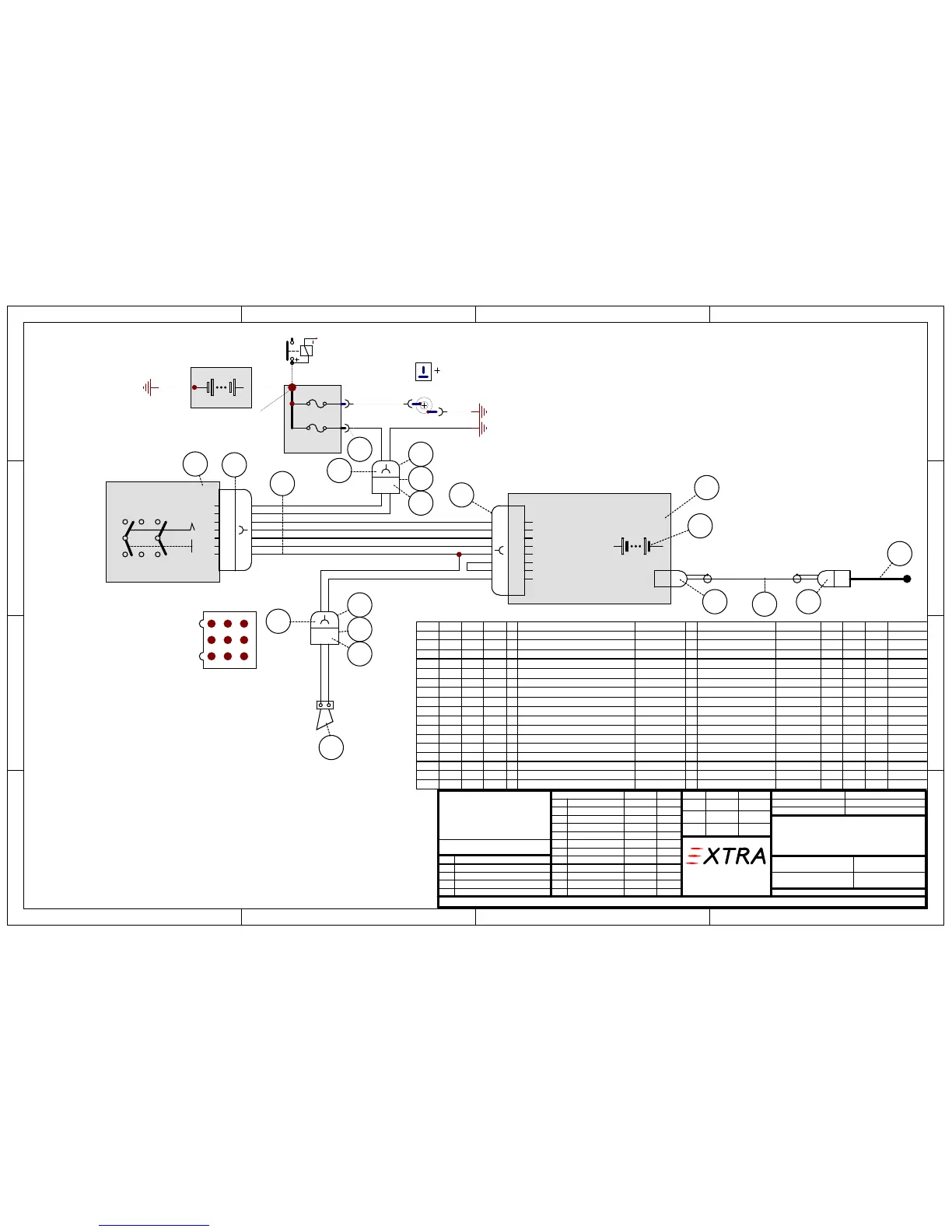
EA 300/LT
ELT ARTEX ME 406
EA-9D102.42
23.03.10 HW
1A4 1
EA3D0951a
0204 03 BenennungNr01 Teilekennzeichen ZF Werkstoff Abmessungen Menge GewichtEinheit MaWi-Nr.
1
2
4
5
6
345-6196
ME 406 ELTTRANSMITTER ASSY
110-773ANTENNA (200knots)
REMOTE SWITCH
1
1
9
ANTENNA CABLE 611-6013-04
1
936g
46g
P1-B P4
TRANSMITTER ASSY
RG 142 C/U
1
1
12
11
5
2
4
WIRING AWG 22X
1
1
2
3
4
5
6
L1
L2
P1-A
SUBD 15S
6
2
14
7
13
2DA
ARTEX ME 406 ELT
6
10
EXCHANGE BATTERY1
MIL-W-22759/16-22
7 REMOTE CONNECTOR 151-50091
452-6504
mtr 01694
ONLY FOR EXCHANGE
7
P2
Molex
8
ELT CONNECTOR
1 150-1130
Light
Reset 1
Reset 2
External On
G-Switch Loop
G-Switch Loop
Horn Power
Ground
5
8
12
8
9
2
5
7
1
+14 VDC
8
3 452-6505ALERT BUZZER1 9,5g
3DA
ALLERT BUZZER
3
114g
142g
123
456
789
Auf Kabelseite gesehen
+
1DA
Die Gültigkeitszuordnung
von Version zu
dem jeweiligen Fertigungsauftrag
zu entnehmen.
Zuordnung links / rechts wird mit
*/* in allen Feldern angegeben.
04
03
02
01
Ver. Bezeichnung
Nr.: Änderung/Mod. Nr.:Datum Name
Letzte Bearbeitung:
Datum Name
Bearb.:
Gepr.:
Maßstab
SI.-Klasse
Oberflächenschutz
Projektion
Freimaßtoleranz
Oberfläche
Schutzvermerk nach DIN 34 beachten.
EDV-Kennung:
auf
Blatt von
Schwarze Heide 21
46569 Hünxe, Germany
Gepr.:
Flugzeugbaureihe
ist der Bauakte bzw.
6
12 V
B1
BATTERIE
5A
F1
CHARGE
#18
#18
1A
F2
EA-83290.1
#4#4
BATTERY RELAY
K1
9/10
zwischen Relaismutter und
Kabelschuh montiert
GEHÄUSE STECKHÜLSE 1 POL
00093FLACHSTECKHÜLSE 6,3mm
00098925324-2
0042282-2
Fa. AMP
6
11
12
1
1
BNC CONNECTOR
B
A ÄM 300-12-10 HW22.07.12
4 AV-200ANTENNA (250 knots) 85g
1
1
1
1
X
1
1
1
1
1
1
1 Fa. RAMI
Fa. ACR Electronics
OPTION 01 = mit Antenne ACR Electronics 110-773 (200 knots)
OPTION 02 = mit Antenne RAMI AV-200 (250 knots)
ELEKTRIK SYSTEM
EA-9__102.1
see conforming
ELEKTRIK SYSTEM
EA-9__102.1
see conforming
REMOTE SWITCH
33965
Relay
#4
33524
03.03.16 HWB ÄM-300-15-07
2
P5
J5
1
#22
#22
16
15
14
13
#22 #22
13
14
43031-0007
FE 4082
MOLEX PIN 20-24
43025-0200 FE 4081
4
2
15
16
43020-0200
MOLEX HOUSING 2 PIN
43030-0007 FE 4079
MOLEX HOUSING 2 SOCKET2
4 MOLEX SOCKET 20-24
2
P5
J5
1
#22
#22
16
15
14
13
4
2
2
4
FE 4080
33252
33896
32173
30705
FE4111

Table of Contents

Other manuals for Extra 300LT

Related product manuals