EasyManua.ls Logo

Extra 300LT - Page 511

Extra 300LT
551 pages
Print Icon
To Next Page IconTo Next Page
To Next Page IconTo Next Page
To Previous Page IconTo Previous Page
To Previous Page IconTo Previous Page
Loading...
1
1
2
2
3
3
4
4
D D
C C
B B
A A
Die Gültigkeitszuordnung
von Version zu
dem jeweiligen Fertigungsauftrag
zu entnehmen.
Zuordnung links / rechts wird mit
*/* in allen Feldern angegeben.
04
03
02
01
Ver. Bezeichnung
Nr.: Änderung/Mod. Nr.: Datum Name
Letzte Bearbeitung:
Datum Name
Bearb.:
Gepr.:
Maßstab
SI.-Klasse
Oberflächenschutz
Projektion
Freimaßtoleranz
Oberfläche
Schutzvermerk nach DIN 34 beachten.
EDV-Kennung:
auf
Blatt von
Schwarze Heide 21
46569 Hünxe, Germany
Gepr.:
Flugzeugbaureihe
ist der Bauakte bzw.
EA 300/SC
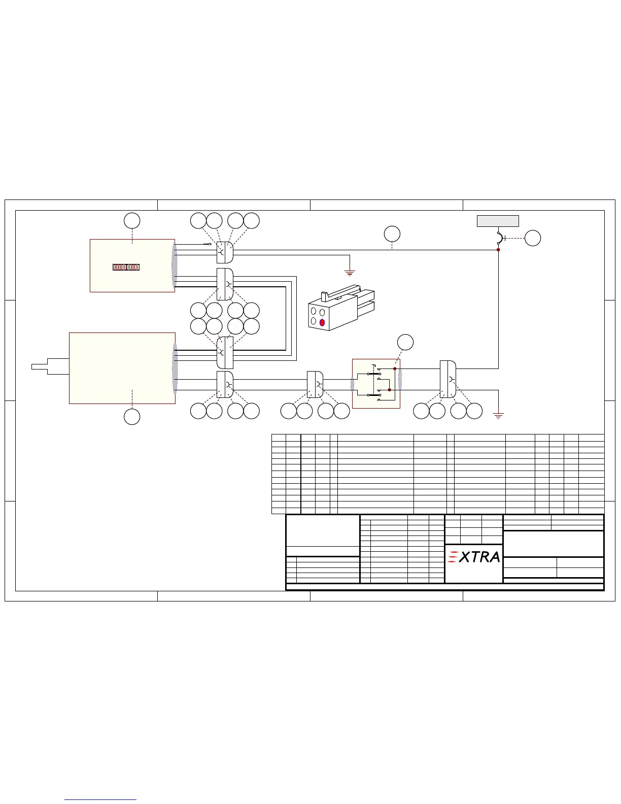
ELECTRIC TRIM SYSTEM
EA-9C102.44
05.05.08 HW
1A4 1
0204 03 BenennungNr01 Teilekennzeichen ZF Werkstoff Abmessungen Menge GewichtEinheit MaWi-Nr.
1
3
4
5
30.11.09 HWA ÄM-300-09-23
1
1
1
1
6
2
2
3
1
UP
DN
S4A
TRIM SWITCH
5
6
4
S4B
PITCH TRIM SERVO
TRIM INDICATOR
orange
white
white
blue
green
red
black
orange
blue
green
1
2
1
2
3
1
2
3
1
2
1
2
1
2
PITCH TRIM SERVO
TRIM INDICATOR
TRIM SWITCH
31506
PIN MOLEX
43025-0200
BUCHSE Molex
43030-0007
7277-2-1
CIRCUIT BREAKER 1A
43031-0007
43025-0400
BUCHSEN GEHÄUSE 4 POLIG
PIN GEHÄUSE 4 POLIG
43020-0400
BUCHSEN GEHÄUSE 2 POLIG
43020-0200
PIN GEHÄUSE 2 POLIG
MIL-W-22759/16-22
KABEL AWG 22
7
8
9
10
11 mtr
2
14
2
4
4
X
14
white
12V Light
12V Power
Ground
Up / Dn
Dn / Up
Position Hi
Position Hi
Position Lo
Position Lo
Position Wiper
Position Wiper
red
black
white
white
T3-12A
RP3-LED
MS35059-27
(open = bright)
Led
#22
#22
#22#22
#22
#22
#22
#22
#22
#22
#22
#22
#22
4
4
#22
#22
TRIM
CB7
1A
MAIN-BUS
#22
EA3C0952al2
1
3
2
4
5
7 8
11
6
9 10
6
5
8 8 89 9 9
7
7
7 7 7
10
10
10 10 10
OPTION 01 = MIT TRIM SWITCH IM PANEL
OPTION 02 = MIT TRIM SWITCH IM STICK
4
TRIM SWITCH
SL-2211C1B2
1
1
1
2
14
2
4
4
14
1
X
*
*
*
*
*
*
*
A
31668
(31668)
31488
33274
FE4256
FE4257
FE4080
FE4081
FE4082
FE4079
01694
17.11.16 HW
NOTE
Alternative zu Pos.-Nr. 5 - 10
Crimpverbinder rot PN. D-436-36 (Raychem)
MaWi-Nr. FE4108
1
3
2
4

Table of Contents

Other manuals for Extra 300LT

Related product manuals