EasyManua.ls Logo

Extra 300LT - Page 514

Extra 300LT
551 pages
Print Icon
To Next Page IconTo Next Page
To Next Page IconTo Next Page
To Previous Page IconTo Previous Page
To Previous Page IconTo Previous Page
Loading...
1 2 3 4 5 6 7 8
A
B
C
D
87654321
D
C
B
A
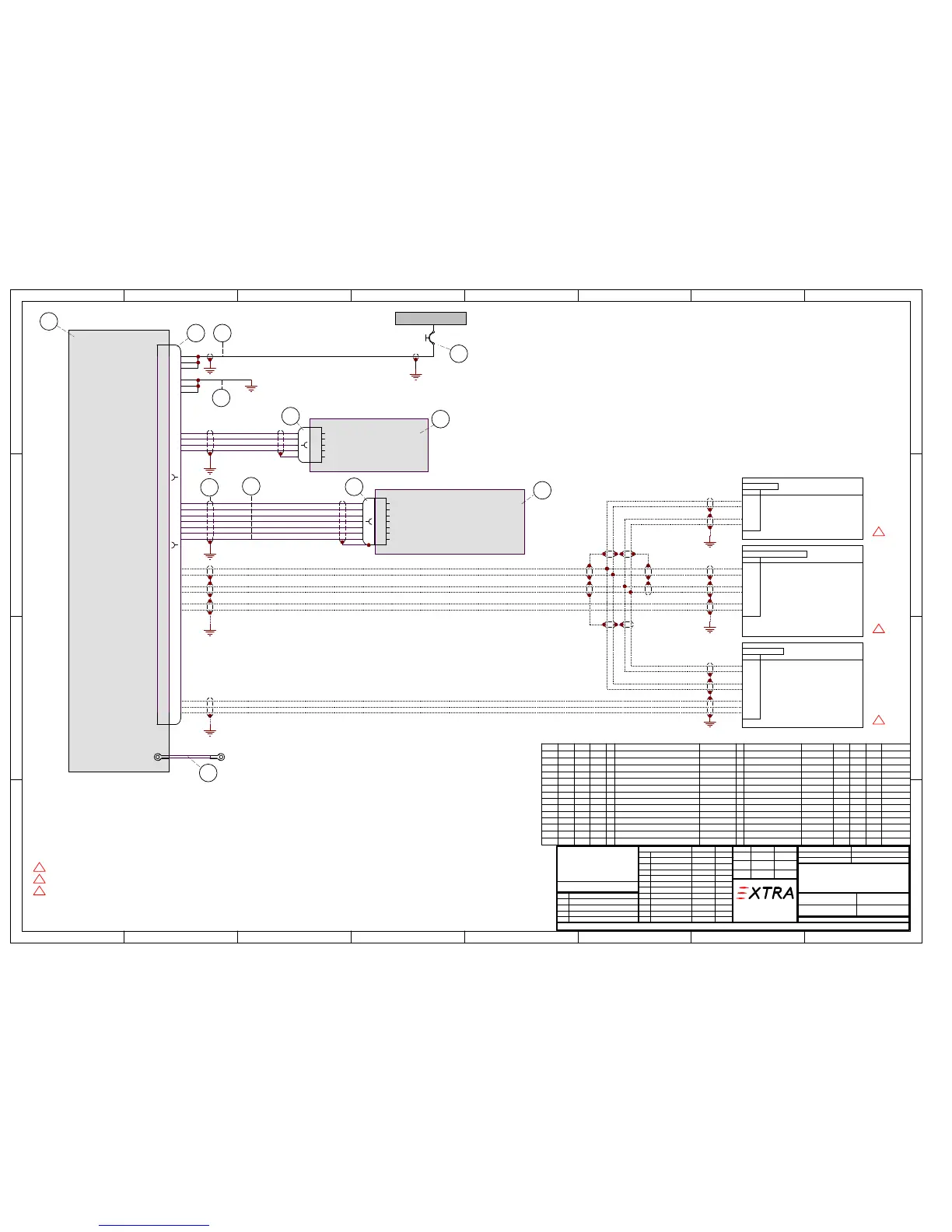
EA 300/LT
EFD 500/1000 MFD
7,5A
AVIONIC-BUS
AIRCRAFT POWER
AIRCRAFT GROUND
AIRCRAFT GROUND
EFD-500/1000 DISPLAY
MFD
1
2
4
5
EA-9D102.47
14.04.10 HW
A/C GND
AIRCRAFT GROUND
AIRCRAFT POWER
6
3
AIRCRAFT POWER
CONFIG_B
CONFIG_C
CONFIG_A
CONFIG_D
41
42
43
44
#18
#18
Die Gültigkeitszuordnung
von Version zu
dem jeweiligen Fertigungsauftrag
zu entnehmen.
Zuordnung links / rechts wird mit
*/* in allen Feldern angegeben.
04
03
02
01
Ver. Bezeichnung
Nr.: Änderung/Mod. Nr.: Datum Name
Letzte Bearbeitung:
Datum Name
Bearb.:
Gepr.:
Maßstab
SI.-Klasse
Oberflächenschutz
Projektion
Freimaßtoleranz
Oberfläche
Schutzvermerk nach DIN 34 beachten.
EDV-Kennung:
auf
Blatt von
Schwarze Heide 21
46569 Hünxe, Germany
Gepr.:
Flugzeugbaureihe
ist der Bauakte bzw.
1A3 1
#24
#24
#24
#24
#24
#24
CONFIG_B
CONFIG_D
CONFIG_A
CONFIG_C
1
2
3
4
CONFIG_S
5
CONFIGURATION MODULE
P1
DD44F10000
P2
Molex 50-57-9045
blk
brn
org
red
blk
brn
org
red
412-0004-001
#22
910-00001-00x
920-00004-00x
#18
D-SUB 44S
AIRFRAME GROUND
CHASSIS STUD
EA3D0956
.
2
1
5 8
4
6
.
12
30
31
32
33
34
RMS_C
RMS_D
RMS_E
36
RMS_G
RMS_A
RMS_B
35
RMS_F
1
2
3
4
5
RMS_C
RMS_D
RMS_E
7
RMS_G
RMS_A
RMS_B
6
RMS_F
REMOTE SENSOR MFD
P3
Hirose SR30-10PF-7P(71)
#24
#24
#24
#24
#24
#24
#24
#24
#24
#24
#24
#24
#24
#24
max 12"
910-00003-002
16
17
429 GPS RX1A
429 GPS RX1B
429 GPS/VLOC TXB
429 GPS/VLOC TXA
26
27
ws
bl
ws
bl
#24
#24
16
17
429 GPS RX1A
429 GPS RX1B
RS232_RX4
RS232_RX5
RS232_TX2
11
14
12
RS232_RX4
RS232_RX5
RS232_TX2
11
14
12
#24
ws
bl
or
24
25
429 TAS RX5A
429 TAS RX5B
ws
bl #24
24
25
429 TAS RX5A
429 TAS RX5B
P1
EFIS-PFD
EFD-1000 PFD
#24
#24
#24
ws
bl
ws
bl
ws
bl
#24
ws
bl
or
OPTIONEN
3
7
ARINC 429 IN 1 B
32 ARINC 429 IN 1 A
35
30
28
Arinc 429 Out 2 A
Arinc 429 Out 2 B
P1
TRANSPONDER
GTX-330/328
#24
#24
ws
bl
ws
bl
46
47
50
51
ARINC 429 IN 2 A
ARINC 429 IN 2 B
ARINC 429 OUT A
ARINC 429 OUT B
Arinc 429 In 1 A
Arinc 429 In 1 B
48
49
COM/(NAV)/GPS SYSTEM
GNC-420W or GNS-430W
P4001
#24
#24
ws
bl
ws
bl
ws
bl
ws
bl
ws
bl
ws
bl
ws
bl
ws
bl
ws
bl
ws
bl
Option EFD-1000 PFD EA-9D102.46
Option TRANSPONDER GTX-330/328
EA-9D102.54Option COM/NAV/GPS GNS-430W
EA-93102.21
EA-9D102.48Option COM/GPS GNC-420W
10
or
Option 01 = MFD-500 installation (without ADAHRS)
Option 02 = MFD-1000 installation (with 2nd ADAHRS)
1
optional MFD requires PFD to be installed
2
optional MFD requires GNC-420W or GNS-430W to be installed
3
optional MFD requires GTX-330 or GTX-328 to be installed
2
3
1
9
11
0204 03 BenennungNr01 Teilekennzeichen ZF Werkstoff Abmessungen Menge GewichtEinheit MaWi-Nr.
1
2
3
4
CONFIGURATION MODULE (500MFD)
1
1
.
.
.
910-00003-002
5
REMOTE SENSOR MODULE
1
1
920-00004-005
EFD 500 (DISPLAY)
910-00001-003
CIRCUIT BREAKER 7,5A
.
.
116-00022-002CONNECTOR SUBD 44S
7277-2-7,5
6
7
8
CONNECTOR RSM CIRCULAR
1
.
.
.
MIL-C-27500-18TG1
9
WIRE AWG18 SHIELD
X
116-00020-001
CONNECTOR 5S WITH CABLE
412-00004-001
.
X
. mtr
WIRE AWG18
MIL-W-22759/16-18
.
.
mtr
10 .
. mtr
WIRE AWG24
2 CONFIGURATION MODULE (1000MFD)1
.920-00004-004
1
1
1
1
1
1
X
X
X
11 .
. . mtr
SHIELD
X
MIL-W-22759/16-24
12 .
.
X
. .
GROUND WIRE
EA-86201.1
X
1 EFD 1000 (DISPLAY)
.910-00001-001

Table of Contents

Other manuals for Extra 300LT

Related product manuals