EasyManua.ls Logo

Extra 300LT - Page 524

Extra 300LT
551 pages
Print Icon
To Next Page IconTo Next Page
To Next Page IconTo Next Page
To Previous Page IconTo Previous Page
To Previous Page IconTo Previous Page
Loading...
1
1
2
2
3
3
4
4
D D
C C
B B
A A
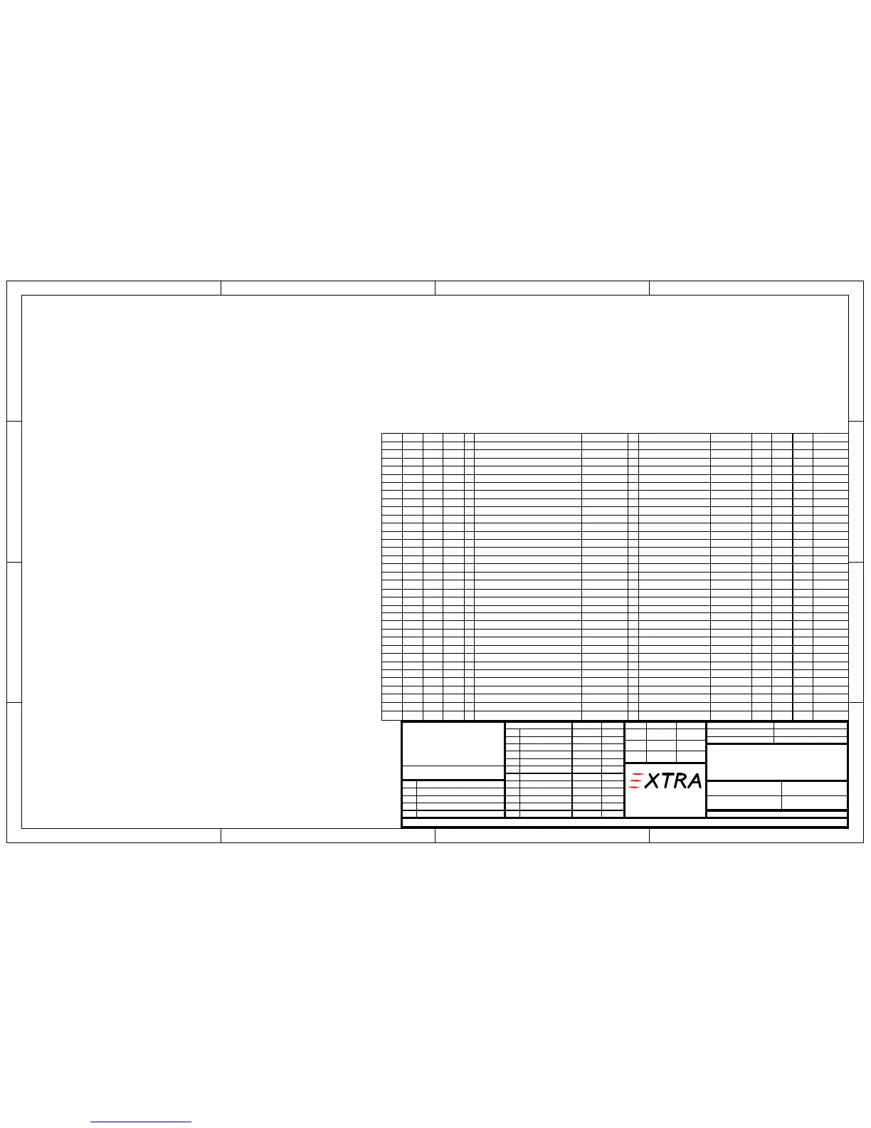
EA 300/LT
DIGITAL INDICATION MVP-50P
EA-9D102.52_2
30.04.10 HW
A4 2 2
EA3D0961_2
Die Gültigkeitszuordnung
von Version zu
dem jeweiligen Fertigungsauftrag
zu entnehmen.
Zuordnung links / rechts wird mit
*/* in allen Feldern angegeben.
04
03
02
01
Ver. Bezeichnung
Nr.: Änderung/Mod. Nr.: Datum Name
Letzte Bearbeitung:
Datum Name
Bearb.:
Gepr.:
Maßstab
SI.-Klasse
Oberflächenschutz
Projektion
Freimaßtoleranz
Oberfläche
Schutzvermerk nach DIN 34 beachten.
EDV-Kennung:
auf
Blatt von
Schwarze Heide 21
46569 Hünxe, Germany
Gepr.:
Flugzeugbaureihe
ist der Bauakte bzw.
0204 03 BenennungNr01 Teilekennzeichen Werkstoff Abmessungen Menge GewichtEinheit MaWi-Nr.
1
2
4
3
6
7
9
8
10
15
11
14
16
12
13
5
17
18
20
19
22
23
25
24
26
33
21
ENGINE DATA CONVERTER
CONNECTOR
CONNECTOR
ENGINE MONITOR
EDC-33P-4/6
CONNECTOR
CONNECTOR
EGT SENSORS P-110
P-100CHT SENSORS
OAT PROBE
P-120
P-128
OIL-TEMP PROBE
TC CONNECTOR SOCKET TYP K
mtr
MANIFOLD PRESS SENSOR PT-30ABS
OIL PRESS SENSOR
PT-100GA
FUEL PRESS SENSOR
PT-30GA
FLOW SENSOR
FT-60
MIL-W-22759/16-22
RESISTOR
VI-221
79KRESISTOR 79K
RFLM 4-12VENGINE DATA CONVERTER
MIL-C-27500-20TG1
mtr
WIRE AWG 22
WIRE AWG 20 SHIELDED
CIRCULAR CONNECTOR
27
28
29
2 226 801 015 001GFUEL SENSOR
BUCHSEN GEHÄUSE 2 POLIG
PIN
PIN GEHÄUSE 2 POLIG
FUEL SENSOR 224 082 006 004R
30
31
32
1
1
1
1
1
6
1
1
1
1
3
5
1
1
1
1
1
1
1
6
X
X
2
1
2
1
2
315067277-2-5CIRCUIT BREAKER 5A
MVP-50P-6C TSO
1
FLACHSTECKER BUCHSE 6,3mm
00093
0042282-2
BUCHSEN GEHÄUSE 1 POLIG 925324-2
00098
mtr
THERMOKABEL
TT-K-22S
X
BUCHSEN
1
34
SPLICE40
1
3 GEHÄUSE 37 POLIG 165X16409X
GEHÄUSE 25 POLIG 165X16399X
33350
33349
0220 0002 Fa. FARNELL
FTS D436-37 FE 4086
supplid by EI (Kit)
supplid by EI (Kit)
supplid by EI (Kit)
supplid by EI (Kit)
supplid by EI (Kit)
supplid by EI (Kit)
33283
see Config..
A
03.09.12 HWA ÄM-300 -12 -01
27.08.16

Table of Contents

Other manuals for Extra 300LT

Related product manuals