EasyManua.ls Logo

Extra 300LT - Page 539

Extra 300LT
551 pages
Print Icon
To Next Page IconTo Next Page
To Next Page IconTo Next Page
To Previous Page IconTo Previous Page
To Previous Page IconTo Previous Page
Loading...
1
1
2
2
3
3
4
4
D D
C C
B B
A A
EA 300/LC
AERA 795
EA-9E102.66
08.08.13 HW
1
A4
1
EA3E0972
0203
BenennungNr
01
Teilekennzeichen ZF Werkstoff Abmessungen Menge GewichtEinheit MaWi-Nr.
1
GPSMAP 795 PANEL DOCK
PANEL DOCK1
Die Gültigkeitszuordnung
von Version zu
dem jeweiligen Fertigungsauftrag
zu entnehmen.
Zuordnung links / rechts wird mit
*/* in allen Feldern angegeben.
04
03
02
01
Ver. Bezeichnung
Nr.: Änderung/Mod. Nr.: Datum Name
Letzte Bearbeitung:
Datum Name
Bearb.:
Gepr.:
Maßstab
SI.-Klasse
Oberflächenschutz
Projektion
Freimaßtoleranz
Oberfläche
Schutzvermerk nach DIN 34 beachten.
EDV-Kennung:
auf
Blatt von
Schwarze Heide 21
46569 Hünxe, Germany
Gepr.:
Flugzeugbaureihe
ist der Bauakte bzw.
2
3
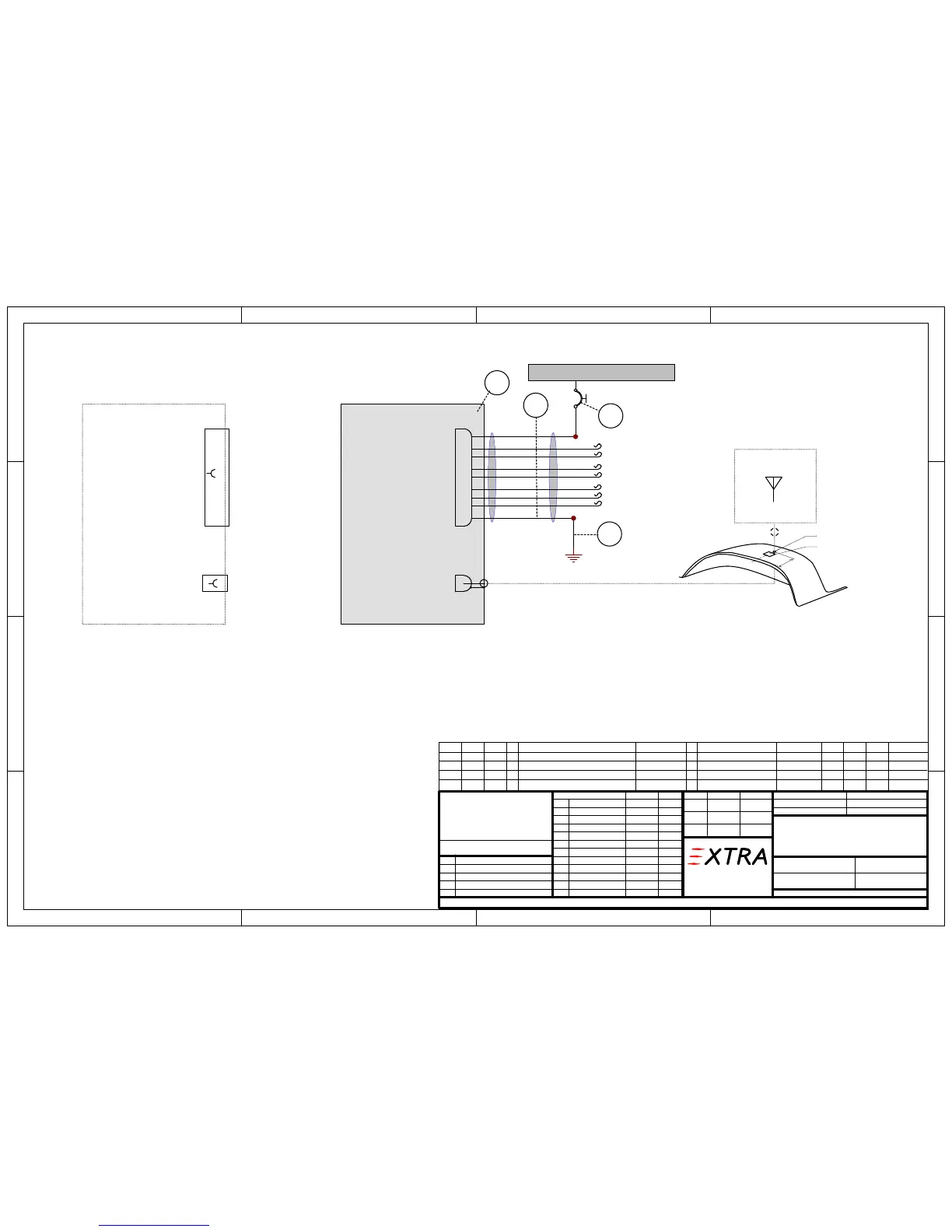
CIRCUIT BREAKER 5A 7277-2-5
010-11756-01POWER DATA CABLE
1
1
GPS ANTENNA
5A
GPS
#20
red
yel
blu
14 VDC POWER
RX1 (Data In)
org
#20
GPSMAP 795 PANEL DOCK
GA-25 MCX
1
3
2
AVIONIC-BUS
POWER GND/DATA GND
TX1 (Data Out)
4
mtr 00775
MIL-W-22759/16-20
WIRE AWG 20
X
4
GPS ANTENNA
GARMIN AERA
9 - 40 VDC POWER
AERA 795
J1
J2
AIR GIZMOS
P2
MCX
Loch 8mm mit Gummituelle
doppelseitiges Klebeband
130 mm
hintere Instrumentenbrettabdeckung
P1
mit Schaumstofftraeger
zur Antennenbefestigung
31506
.
grn
AUDIO COMMON
blk
AUDIO RIGHT
AUDIO LEFT
brn
pur
RX2 (Data In)
wht
TX2 (Data Out)
PD-22
AIRGIZMOS
RX1 (Data In)
GROUND
TX1 (Data Out)
AUDIO COMMON
AUDIO RIGHT
AUDIO LEFT
RX2 (Data In)
TX2 (Data Out)
OPTIONS AUSGÄNGE
34215

Table of Contents

Other manuals for Extra 300LT

Related product manuals