EasyManua.ls Logo

Geely FC - Page 407

Geely FC
419 pages
Print Icon
To Next Page IconTo Next Page
To Next Page IconTo Next Page
To Previous Page IconTo Previous Page
To Previous Page IconTo Previous Page
Loading...
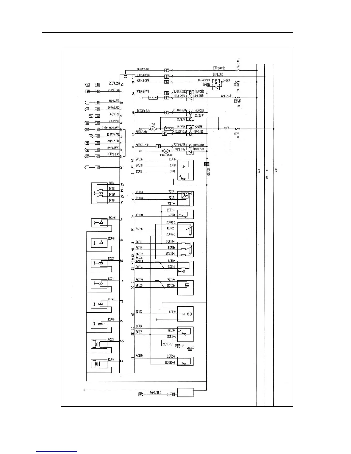
Electric injection control of engine
Electrical schematic diagram--Electric injection control of engine
 396 

Table of Contents

Related product manuals