EasyManua.ls Logo

Geely FC - Page 410

Geely FC
419 pages
Print Icon
To Next Page IconTo Next Page
To Next Page IconTo Next Page
To Previous Page IconTo Previous Page
To Previous Page IconTo Previous Page
Loading...
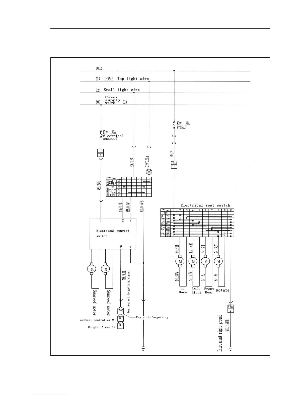
Electric sunroof Electric chair
Electrical schematic diagram--Electric sunroof Electric chair
 399 

Table of Contents

Related product manuals