EasyManua.ls Logo

Geely FC - Page 409

Geely FC
419 pages
Print Icon
To Next Page IconTo Next Page
To Next Page IconTo Next Page
To Previous Page IconTo Previous Page
To Previous Page IconTo Previous Page
Loading...
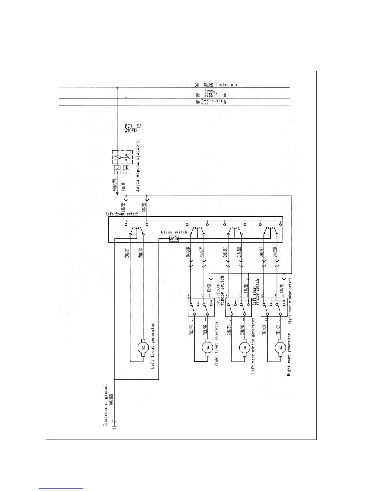
Electric glass lifter
Electrical schematic diagram--Electric glass lifter
 398 

Table of Contents

Related product manuals