EasyManua.ls Logo

Geely FC - Page 415

Geely FC
419 pages
Print Icon
To Next Page IconTo Next Page
To Next Page IconTo Next Page
To Previous Page IconTo Previous Page
To Previous Page IconTo Previous Page
Loading...
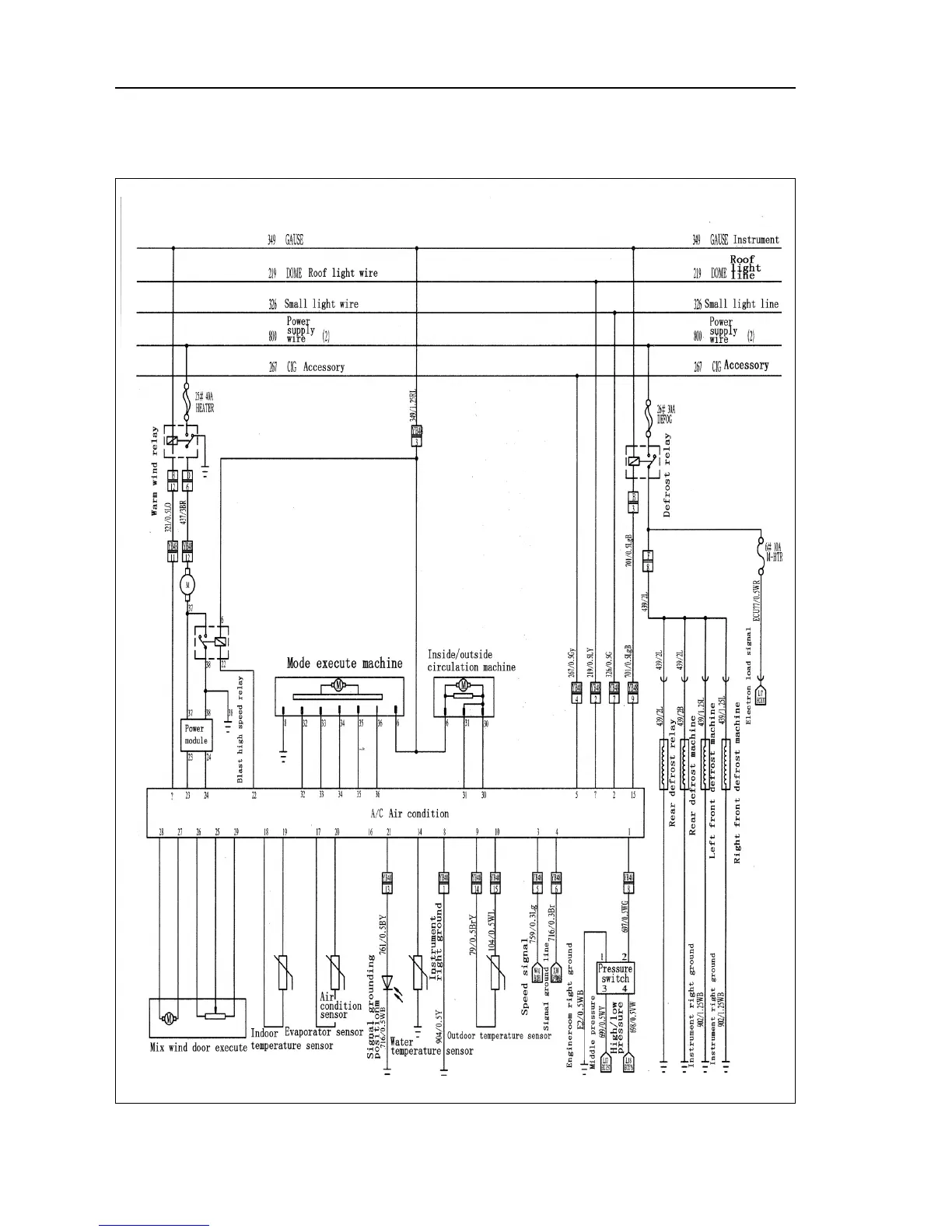
Air conditioning system Defrosting system
Electrical schematic diagram--Air conditioning system Defrosting system
 404 

Table of Contents

Related product manuals