EasyManua.ls Logo

Jabiru j430 - Rudder Control System; Rudder Pedal System

Default Icon
298 pages
Print Icon
To Next Page IconTo Next Page
To Next Page IconTo Next Page
To Previous Page IconTo Previous Page
To Previous Page IconTo Previous Page
Loading...
Aircraft Technical Manual
Jabiru Aircraft Pty Ltd
JTM001-5
J120, J160, J170, J200/J400, J230/J430, J250/J450 Variants
This document is controlled while it remains on the Jabiru server. Once this no longer applies the document becomes uncontrolled.
ISSUE
1
2
3
4
5
Dated: 29th October 2014
Issued By: AS
Page: 184 of 298
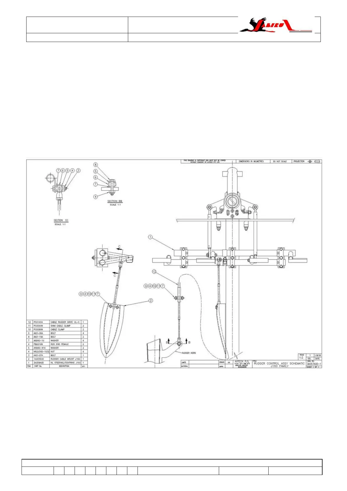
6G Rudder Control System
6.71 RUDDER Pedal SYSTEM (all J-Series)
6.71.1 Description
Jabiru Aircraft use rudder pedals connect directly to the nose leg to control nose wheel steering in
addition to the rudder control surface. The system is comprised of rudder pedals, two push rods, a
centring mechanism and an enclosed push-pull cable.
Optional adjustable rudder pedals may be fitted. These pedals are adjusted by means of a spring-
loaded pin that allows each pedal to be moved to one of three positions.
Due to space constraints not all different variations are shown herein. When ordering spare parts
provide as must detail as possible part description, aircraft model, serial number etc to Jabiru to
ensure accurate part identification.
Figure 132 Typical Rudder System Schematic (all J-Series)

Table of Contents

Related product manuals