EasyManua.ls Logo

JUMO mTRON T - Dimensions

JUMO mTRON T
278 pages
Print Icon
To Next Page IconTo Next Page
To Next Page IconTo Next Page
To Previous Page IconTo Previous Page
To Previous Page IconTo Previous Page
Loading...
3 Installation
36
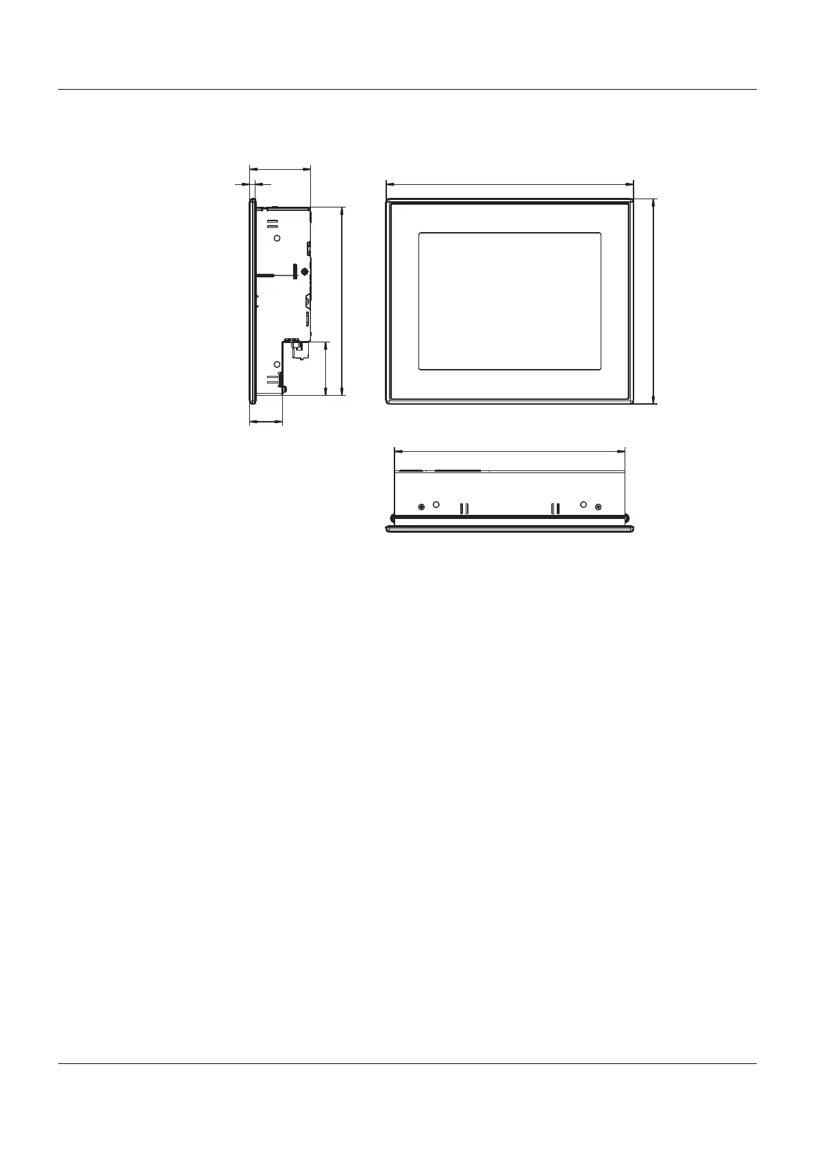
3.4 Dimensions
58
5
235
195
219
31
51
179

Table of Contents

Other manuals for JUMO mTRON T