EasyManua.ls Logo

Mitsubishi FX3U-4HSX-ADP - External Dimensions

Mitsubishi FX3U-4HSX-ADP
520 pages
To Next Page IconTo Next Page
To Next Page IconTo Next Page
To Previous Page IconTo Previous Page
To Previous Page IconTo Previous Page
Loading...
304
FX3U Series Programmable Controllers
User’s Manual - Hardware Edition
15 FX2N-32/48E*-* (Input/Output Powered Extension Units)
15.5 FX2N-32ER, FX2N-48ER, FX2N-48ER-D
3. Output specifications (relay output type)
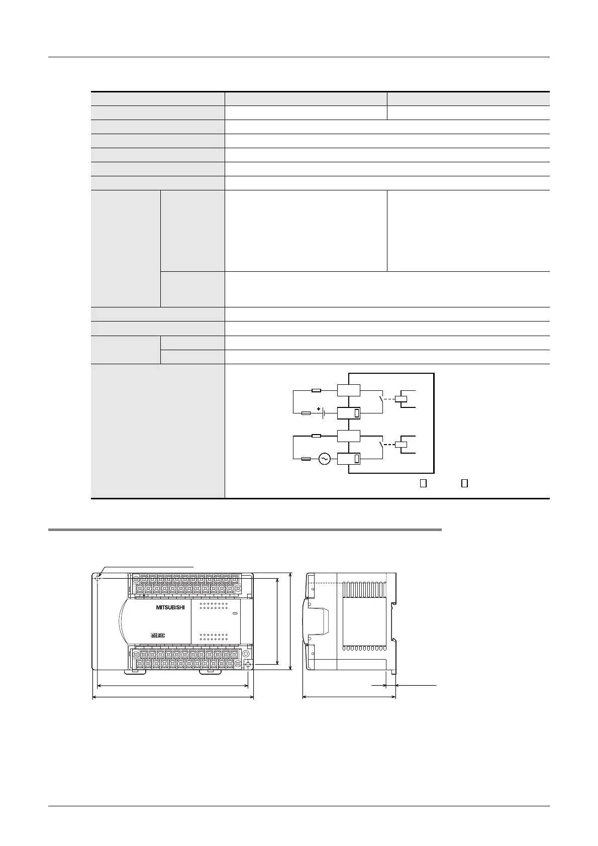
15.5.2 External dimensions
FX2N-32ER
Item FX2N-32ER FX2N-48ER, FX2N-48ER-D
Number of output points 16 points 24 points
Connection type Removable terminal block (M3 screw)
Output unit Relay
External power supply 250V AC/30V DC or less
Output circuit insulation Mechanical insulation
Indication of output operation When power is applied to relay coil, LED on panel is lit.
Max. load
Resistance
load
2 A/point
The total load current per common ter-
minal should be the following value.
4 output points/common terminal: 8 A
or less
2 A/point
The total load current per common ter-
minal should be the following value.
4 output points/common terminal: 8 A
or less
8 output points/common terminal: 8 A
or less
Inductive load
80 VA
For the product life, refer to Subsection 4.4.2.
For cautions on external wiring, refer to Subsection 12.2.4.
Open circuit leakage current
Min. load 5V DC, 2 mA (reference value)
Response time
OFFON Approx. 10 ms
ONOFF Approx. 10 ms
Output circuit diagram
External
power supply
Load
Fuse
Y
COM
DC power
supply
Fuse
Y
COM
A common number applies to the of [COM ].
72456
1
3
0
72456
1
3
0
OUT
IN
L
X1
X3 X5 X7
X6
X0
X2 X4 X6
24+
N
COM X4
X7
COM4COM2
Y4
Y5
Y6
Y7 COM3
Y0
Y1
Y2
Y3
COM1
Y0
Y1
Y2
Y3
Y4
Y5
Y6
Y7
X3
X2
X1
X0
X5
FX
2N
-32ER
POWER
72456
1
3
0
72456
1
3
0
150 (5.91")
140 (5.52") (mounting hole pitch)
80 (3.15")
(mounting hole pitch)
90 (3.55")
9 (0.36")
Unit : mm (inches)
87 (3.43")
2-φ4.5 mounting holes
The terminal block uses
M3 terminal screws.

Table of Contents

Related product manuals