EasyManua.ls Logo

Mitsubishi FX3U-4HSX-ADP - Fx 2 N -64 Cl-M; Fx 3 U -16 Ccl-M

Mitsubishi FX3U-4HSX-ADP
520 pages
To Next Page IconTo Next Page
To Next Page IconTo Next Page
To Previous Page IconTo Previous Page
To Previous Page IconTo Previous Page
Loading...
FX3U Series Programmable Controllers
User’s Manual - Hardware Edition
368
18 Other Extension Devices and Optional Units (External Dimensions and Terminal Arrangement)
18.1 Special Function Units/Blocks
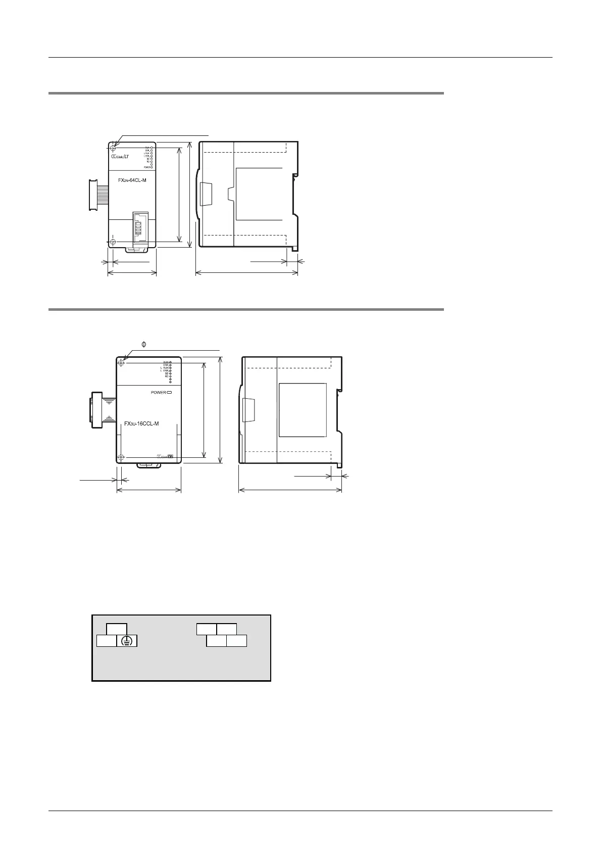
18.1.24 FX2N-64CL-M
External Dimensions
•MASS(Weight): 0.15kg (0.33lbs)
•Installation: 35mm (1.38") wide DIN rail
or screws
•Accessories: Label for indication of special
unit/block number,
Manual supplied with product
•The connector for CC-Link/LT interface is on
the front face of the product
•The extension cable is already connected to
the extension block
18.1.25 FX3U-16CCL-M
External Dimensions
•MASS(Weight): 0.3kg (0.66lbs)
•Installation: 35mm (1.38") wide DIN rail
or screws
•Accessories: Label for indication of special
unit/block number,
Terminal resistor:
2 resistors for CC-Link
dedicated cable/2 resistors
for CC-Link dedicated high-
performance cable,
Dust Proof sheet,
Manual supplied with product
•Terminal block: M3 screws for power supply
terminal, CC-Link connection
terminal,
M3.5 screws for CC-Link
connection terminal block
mounting screws (black)
•The extension cable is already connected to
the extension block
Terminal Layout
87(3.43")
80(3.15")
(mounting hole pitch)
90(3.55")
Unit:mm (inches)
4(0.16")
9(0.36")
43(1.7")
2-φ4.5 mounting holes
4.5 mounting holes
2-
Unit:mm (inches)
87(3.43")
80(3.15")
(mounting hole pitch)
90(3.55")
4(0.16")
9(0.36")
55(2.17")
24+
24-
DG SLD
DA DB

Table of Contents

Related product manuals