EasyManua.ls Logo

Secutron MMX Series - Figure 61 MMX-LOC

Secutron MMX Series
217 pages
Print Icon
To Next Page IconTo Next Page
To Next Page IconTo Next Page
To Previous Page IconTo Previous Page
To Previous Page IconTo Previous Page
Loading...
92
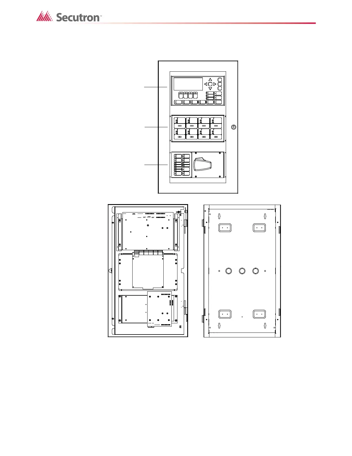
Hardware Layouts
Note that the deadfront and door can be installed such that they open either to the left or to the
right as required. The outer dimensions of the MMX-LOC fit within 25.0” X 15.0” X 7.0”.
Figure 61 MMX-LOC

Table of Contents

Related product manuals