EasyManua.ls Logo

SMAR LC700 - Page 21

SMAR LC700
184 pages
Print Icon
To Next Page IconTo Next Page
To Next Page IconTo Next Page
To Previous Page IconTo Previous Page
To Previous Page IconTo Previous Page
Loading...
LC700 Architecture
2.9
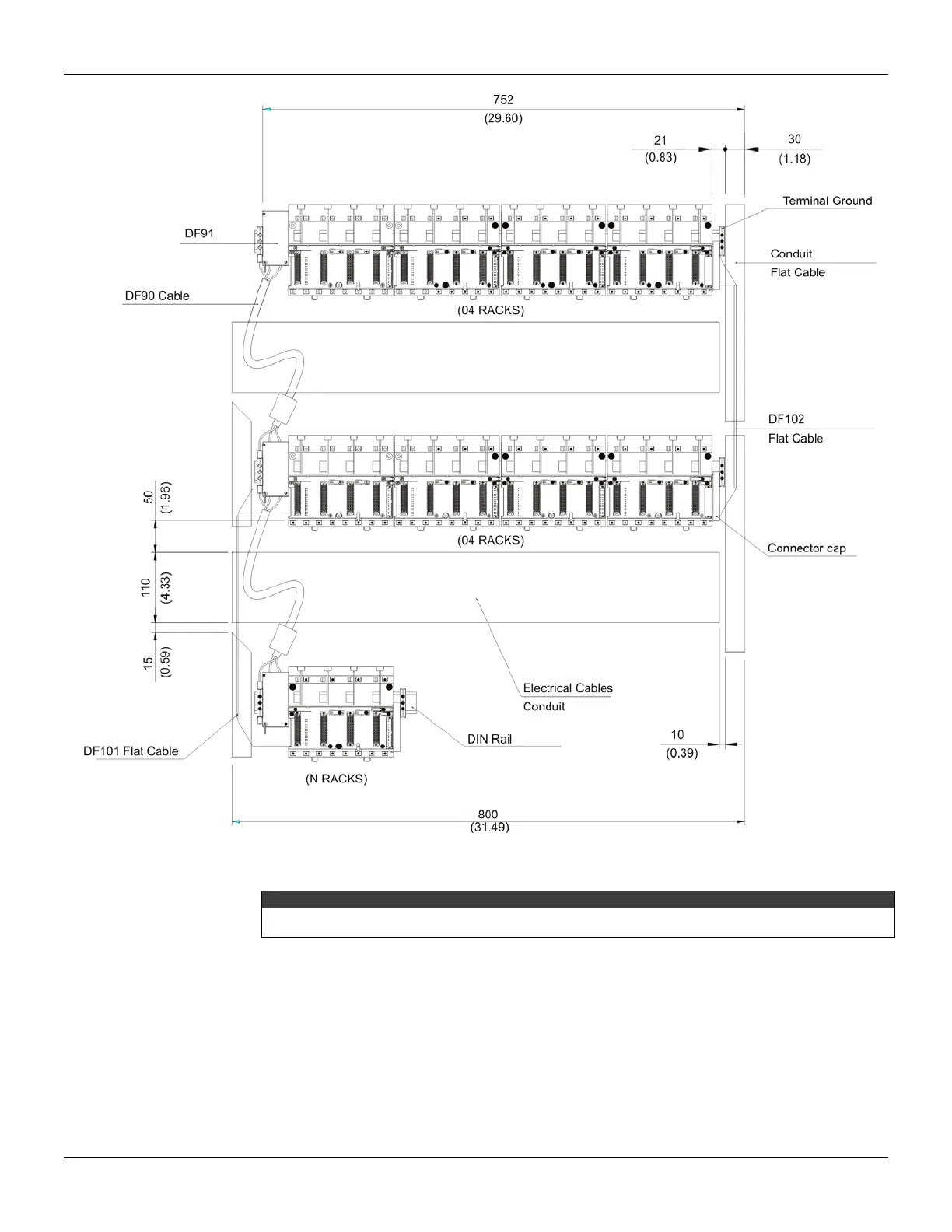
Figure 2.15 - Example of expanded system
IMPORTANT
The DF91 must be installed at left side of each row of racks, to meet the requeriments of EMC standards even if
no expansion of power.
Installing the DF91 in the DIN rail
The DF91 is installed on the rack of the left extremity of each row of racks.
To connect the DF91 to the DIN rail, fix the DF91’s rear part in the upper edge of the DIN rail, and
then, accommodate the DF91 in the rail, pushing it until you hear a "click" sound.

Table of Contents

Related product manuals