EasyManua.ls Logo

Wacker Neuson WL34 - Page 277

Wacker Neuson WL34
348 pages
Print Icon
To Next Page IconTo Next Page
To Next Page IconTo Next Page
To Previous Page IconTo Previous Page
To Previous Page IconTo Previous Page
Loading...
SHB WL34 * 2.0 9-17
Electrical system 9
Diagrams
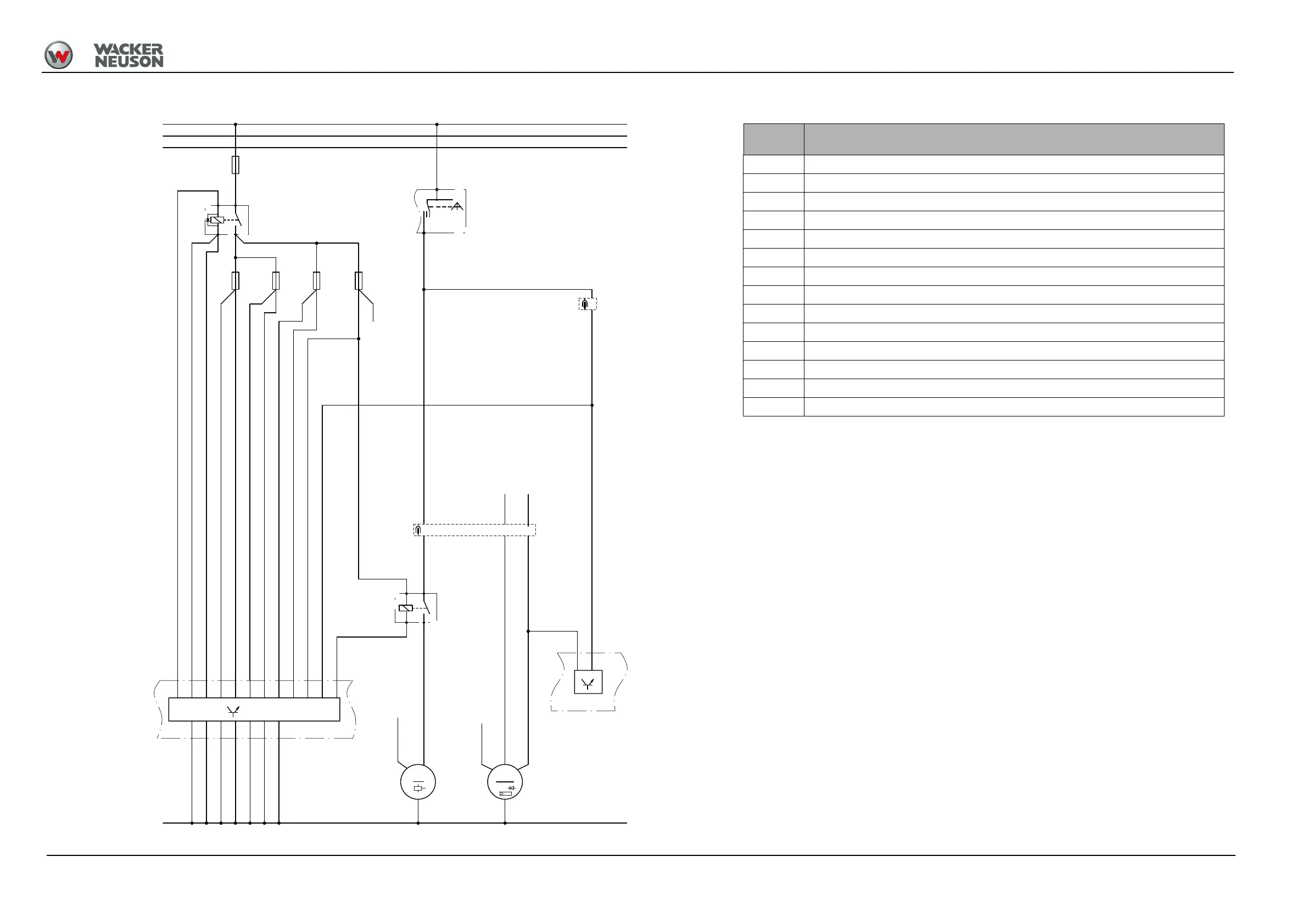
9.10 Electrical diagram – Perkins engine 404F-22 (FG02-02)
02
1
S008:2/FG01-1
S008:1/FG01-1
XA01:16/FG3-1
XA01:1/FG3-1
K006:86/FG02-3
15
50
15
50
31 31
3030
30
50
1
7
30 50
B+ D+
W
8
53
4641
7
38 58 78 12 532321418119
39 40 59 60 79 8020
S001
RD-10
G001
M001
X001
BK-35
OG-2,5
YE/BK-2,5
N004
X002
PK
PK PK
PK-0,75
YE/BK
PK-1,5
RD-16
WH
GY/RD
PK
PK-0,75
K007
OG-2,5
N005
WH-0,75
F303
60 A
K042
WH-0,75
WH-0,75
WH-0,75
RD-6
F033
5 A
F035
10 A
F034
10 A
F036
15 A
RD/WH-2,5
RD/WH-2,5
RD/WH-0,75
RD/WH-0,75
RD/WH-0,75
RD/WH-0,75
RD/WH-0,75
RD/WH-0,75
RD/WH-0,75
RD/WH-0,75
BK-0,75
BK-0,75
BK-0,75
BK-0,75
BK-0,75
BK-0,75
BK-0,75
M
G
3~
87
85
30
86
8785
3086
Assign-
ment
Designation
F033 ECU N005
F034 ECU N005
F035 ECU N005
F036 ECU N005, preheating relay
F303 Main fuse F033-F034
G001 Generator
K007 Start high-current relay
K042 Engine electronics switching relay
M001 Starter
N004 Traction electronics
N005 Diesel engine electronics
S001 Preheating start switch
X001 Instrument panel
X002 Instrument panel

Table of Contents

Related product manuals