EasyManua.ls Logo

Wacker Neuson WL34 - Page 289

Wacker Neuson WL34
348 pages
Print Icon
To Next Page IconTo Next Page
To Next Page IconTo Next Page
To Previous Page IconTo Previous Page
To Previous Page IconTo Previous Page
Loading...
SHB WL34 * 2.0 9-29
Electrical system 9
Diagrams
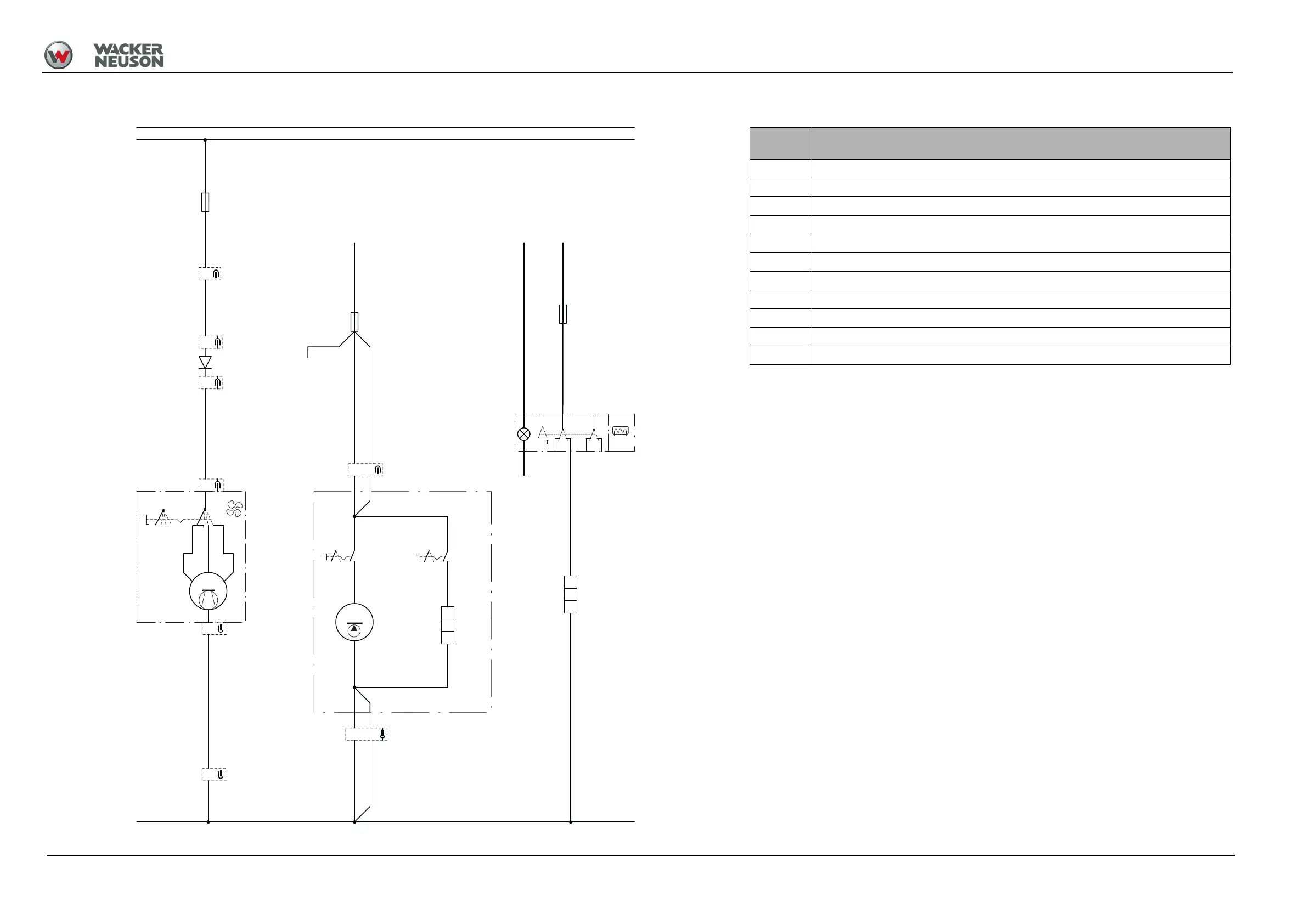
9.22 Electrical diagram – Heating; Seat (FG09-01)
K002:87/FG01-2
K020:30/FG10-1/2
K114:87/FG05-1
X030:2/FG05-1
15 15
31 31
3030
5
1
2
23
1
31
0123
LMH
B
2
1
6
0101
7
4
6
5
1
2
9
10
8
271
56
0
X000
F014
10 A
GN-1,5BN-1,5
V002
BN-1,5
M004
BK-1,5BN-1,5
X000
M010
R032
X104
X104
F028
20 A
RD/WH2,5RD/WH-1,5
RD/WH-1,5
BN-1,5
BN-1,5
GN
BU
R006
BN
BK
S059
GN
F038
7.5 A
M
M
Assign-
ment
Designation
F014 Cabin heating
F028 Heated seat/compressor/relay control valve
F038 Rear window heating
M004 Fan
M010 Air-suspension seat
R006 Rear window heating
R032 Heated seat
S059 Rear window heating
V002 Diode heater
X000 Lights/heating
X104 Operator seat interface

Table of Contents

Related product manuals