EasyManua.ls Logo

YASKAWA VS-656MR5 - Page 216

YASKAWA VS-656MR5
305 pages
Print Icon
To Next Page IconTo Next Page
To Next Page IconTo Next Page
To Previous Page IconTo Previous Page
To Previous Page IconTo Previous Page
Loading...
Specifications
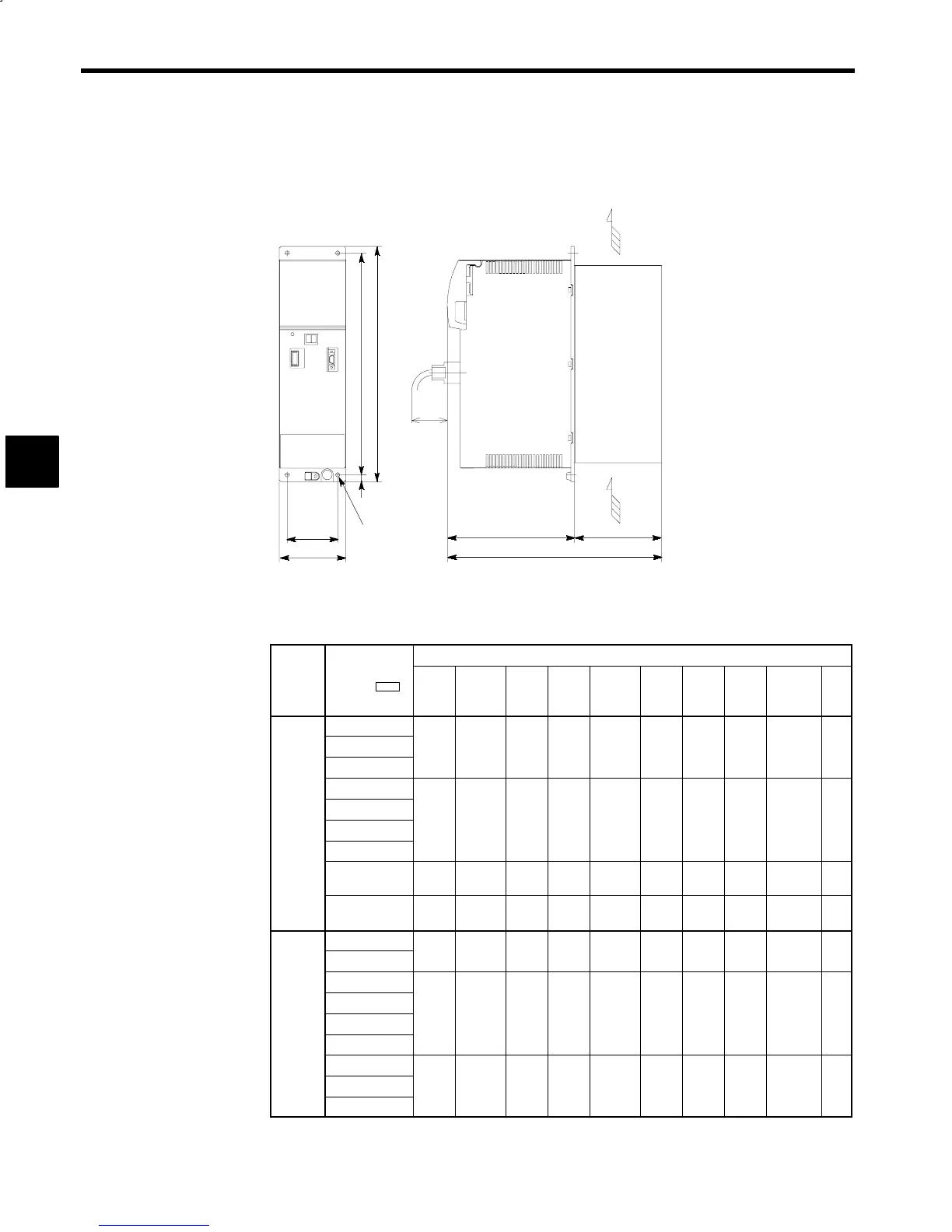
14.1.3 Dimensions
14 -12
J Converter (VS-656MR5) External Heatsink Cooling Type
The figures below show a 200 V 10 HP (7.5 kW) model.
Max.70mm
(2.76 inches)
D
H1
H
W1
W
4-d
H2
D1 D2
Air
Air
Fig 14.3 Dimensions of the Converter
Table 14.7 VS-656MR5 Dimensions and Approx. Mass
External Heatsink Cooling Type Dimensions in mm (inches)
Voltage
Class
Model CIMR-
MR5j*
W H D W1 H1 H2 D1 D2 Approx.
Mass
kg (Ib)
d
23P7
100
350
320
75
330
10
190
130
5
25P5
100
(
3.94
)
350
(
13.78
)
320
(
12.6
)
75
(
2.95
)
330
(
12.99
)
10
(
0.39
)
190
(
7.48
)
130
(
5.12
)
5
(
11
)
M5
27P5
(3
.
94)
(13
.
78)
(12
.
6)
(2
.
95)
(12
.
99)
(0
.
39)
(7
.
48)
(5
.
12)
(1
1)
27P5
2011
200
V
2015
150 350 320 100 330 10 190 130 12
M5
200
V
class
2018
150
(
5.91
)
350
(
13.78
)
320
(
12.6
)
100
(
3.94
)
330
(
12.99
)
10
(
0.39
)
190
(
7.48
)
130
(
5.12
)
12
(
26
)
M5
c
l
ass
2018
(5
.
91)
(13
.
78)
(12
.
6)
(3
.
94)
(12
.
99)
(0
.
39)
(7
.
48)
(5
.
12)
(26)
2022
2030
200
(7.87)
350
(13.78)
320
(12.6)
150
(5.91)
330
(12.99)
10
(0.39)
190
(7.48)
130
(5.12)
16
(35)
M5
2037
300
(11.8)
350
(13.78)
320
(12.6)
250
(9.84)
330
(12.99)
10
(0.39)
190
(7.48)
130
(5.12)
26
(57.3)
M6
45P5
100 350 320 75 330 10 190 130 7
M5
47P5
100
(3.94)
350
(13.78)
320
(12.6)
75
(2.95)
330
(12.99)
10
(0.39)
190
(7.48)
130
(5.12)
7
(15)
M5
4011
400
V
4015
150 350 320 100 330 10 190 130 12
M5
400 V
4018
150
(
5.91
)
350
(
13.78
)
320
(
12.6
)
100
(
3.94
)
330
(
12.99
)
10
(
0.39
)
190
(
7.48
)
130
(
5.12
)
12
(
26
)
M5
400
V
class
4018
(5
.
91)
(13
.
78)
(12
.
6)
(3
.
94)
(12
.
99)
(0
.
39)
(7
.
48)
(5
.
12)
(26)
class
4022
4030
250
350
320
200
330
10
190
130
21
4037
250 350 320 200 330 10 190 130 21
M5
4037
250
(
9.84
)
350
(
13.78
)
320
(
12.6
)
200
(
7.87
)
330
(
12.99
)
10
(
0.39
)
190
(
7.48
)
130
(
5.12
)
21
(
46
)
M5
4045
(9
.
84)
(13
.
78)
(12
.
6)
(7
.
87)
(12
.
99)
(0
.
39)
(7
.
48)
(5
.
12)
(46)
* A: For stand-alone drive system N: for NC system
14

Table of Contents

Related product manuals