EasyManua.ls Logo

YASKAWA VS-656MR5 - Page 217

YASKAWA VS-656MR5
305 pages
Print Icon
To Next Page IconTo Next Page
To Next Page IconTo Next Page
To Previous Page IconTo Previous Page
To Previous Page IconTo Previous Page
Loading...
14.1 Drives
14 -13
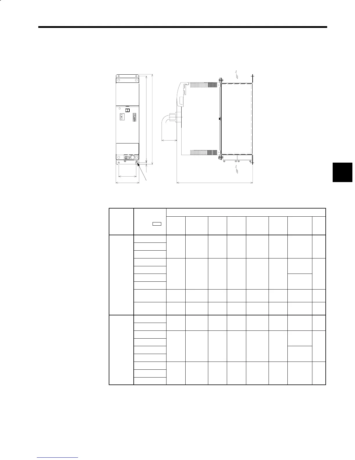
J Converter (VS-656MR5) Open Chassis Type
The figures below show a 200 V 10 HP (7.5 kW) model.
D
H
H1H2
4-d
W1
W
Max.70mm
(2.76 inches)
Air
Air
Fig 14.4 Dimensions of the Converter
Table 14.8 VS-656MR5 Dimensions and Approx. Mass
External Heatsink Cooling Type Dimensions in mm (inches)
Voltage
Class
Model CIMR-
MR5j*
W H D W1 H1 H2 Approx.
Mass
kg (Ib)
d
23P7
100
385
324
75
370
75
6
25P5
100
(
3.94
)
385
(
15.16
)
324
(
12.76
)
75
(
2.95
)
370
(
14.57
)
7.5
(
0.30
)
6
(
13
)
M5
27P5
(3
.
94)
(15
.
16)
(12
.
76)
(2
.
95)
(14
.
57)
(0
.
30)
(13)
27P5
2011
16
200
V
2015
150 470 324 100 455 6.5
16
(35)
M5
200
V
class
2018
150
(
5.91
)
470
(
18.5
)
324
(
12.76
)
100
(
3.94
)
455
(
17.91
)
6
.
5
(
0.26
)
16 5
M5
c
l
ass
2018
(5
.
91)
(18
.
5)
(12
.
76)
(3
.
94)
(17
.
91)
(0
.
26)
16.5
2022
16
.
5
(36)
2030
200
(7.87)
470
(18.5)
324
(12.76)
150
(5.91)
455
(17.91)
6.5
(0.26)
21.5
(47)
M5
2037
300
(11.81)
470
(18.50)
324
(12.76)
250
(9.84)
455
(17.91)
7
(0.28)
40
(1.57)
M6
45P5
100 385 324 75 370 7.5 8
M5
47P5
100
(
3.94
)
385
(
15.16
)
324
(
12.76
)
75
(
2.95
)
370
(
14.57
)
7
.
5
(
0.30
)
8
(
18
)
M5
47P5
(3
.
94)
(15
.
16)
(12
.
76)
(2
.
95)
(14
.
57)
(0
.
30)
(18)
4011
16
400
V
4015
150 470 324 100 455 6.5
16
(35)
M5
400 V
4018
150
(
5.91
)
470
(
18.5
)
324
(
12.76
)
100
(
3.94
)
455
(
17.91
)
6
.
5
(
0.26
)
16 5
M5
400
V
class
4018
(5
.
91)
(18
.
5)
(12
.
76)
(3
.
94)
(17
.
91)
(0
.
26)
16.5
class
4022
16
.
5
(36)
4030
250
470
324
200
455
7
30
4037
250
(
9.84
)
470
(
18.50
)
324
(
12.76
)
200
(
7.87
)
455
(
17.91
)
7
(
0.28
)
30
(
0.98
)
M6
4045
(9
.
84)
(18
.
50)
(12
.
76)
(7
.
87)
(17
.
91)
(0
.
28)
(0
.
98)
4045
Note: The 2037 and 4030 to 4045 models are in development.
* A: For stand-alone drive system N: for NC system
14

Table of Contents

Related product manuals