EasyManua.ls Logo

Bardac PLX - Page 78

Default Icon
235 pages
Print Icon
To Next Page IconTo Next Page
To Next Page IconTo Next Page
To Previous Page IconTo Previous Page
To Previous Page IconTo Previous Page
Loading...
78 CHA NGE PARA METERS
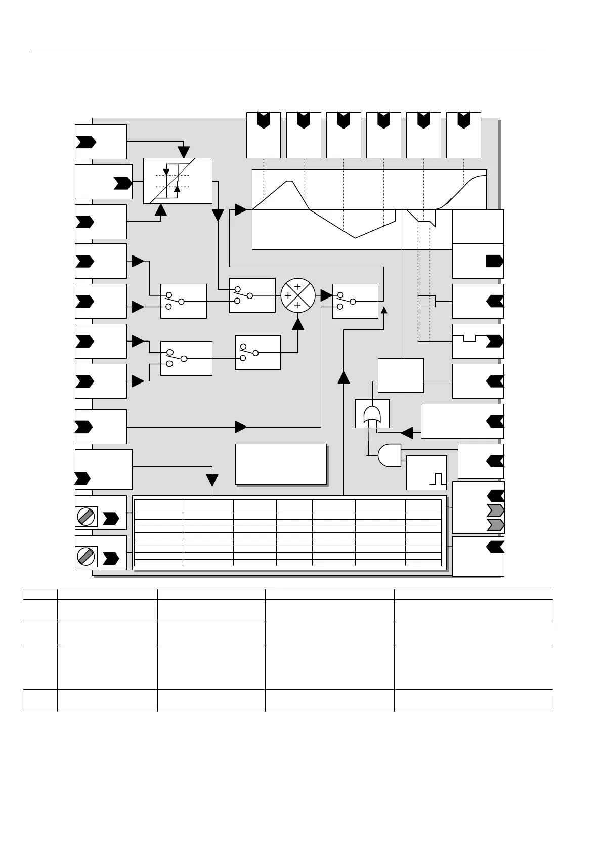
6.3.1 JOG CRA WL SLA CK / Block diagram including RUN MODE RA MPS
M0de RA MP AUT O PRESET RA MP EXT PRESET RUN MODE RAMP action JO G MODE RA MP action
1 DISABLED DISABLED Held at zero w hen stopped.
Starts from zero.
Held at zero w hen stopped.
Starts from zero.
2 DISABLED EN A BLED Held at PRESET V ALUE
permanently.
Held at PRESET V ALUE when stopped.
Starts from PRESET V ALUE
3 EN A BLED DISABLED Ramp continues to follow input
reference w hen stopped.
Starts from PRESET
V ALUE
Ramp continues to follo w input
reference w hen stopped.
Starts from PRESET V ALUE
4 EN A BLED EN A BLED Held at PRESET V ALUE
permanently.
Held at PRESET V ALUE when stopped.
Starts from PRESET V ALUE
Mode 1 ensures that the ramp output is reset to 0.00% during all stopping modes.
Modes 2/3/4 have an active ramp output during all stopping modes which is useful in cascaded systems. The
action of starting momentarily presets the ramps. (Default value 0.00%).
Note. 30)RA MP EXT PRESET has permanent action on the RUN MODE RAMP and, if already high, has a
momentary action at the commencement of a JO G request. The 29)RAMP A UT O PRESET input is A NDED
with 720)SYSTEM RESET pulse, which is simultaneous with the release of the current loop.
PIN 27
Fw d min speed
PIN 28
Rev min speed
RUN M ODE RA MP
And
JO G CRA WL SLA C K
PIN 37
JO G speed 1
PIN 38
JO G speed 2
Run / slack
Jog IP
Jog speed1
Jog speed2
PIN 39
SLA CK speed1
PIN 40
SLA CK speed2
Slack speed1
Slack speed2
Slack off
Slack on
Crawl
F wd
up
PIN
22
F wd
dow n
PIN
2
Rev
up
PIN
24
Rev
dow n
PIN
2
S shape
ramp
PIN
2
Ramp
hold
PIN
Run mode
ramp
GO TO
Run mode
ramp OP
Monitor
PIN 21
PIN 31
Ramp
Preset
Value input
PIN 35
Ramping
Flag output
PIN 34
Ramping
Flag
Threshold
PIN 41
Cra w l speed
Operating
function
JOG M O DE
SELEC T T19
ST A RT T33
IP level
JO G T 32
IP level
Ramp input
Total value
Applied ramp
time
Contactor
state
Stopped lo w lo w low reference Stop ramp time OFF
Stopped high lo w low reference Stop ramp time OFF
Running lo w high low reference Run mode ramp ON
Slack 1 takeup low high high ref + slack1 Jog/slack ramp ON
Slack 2 takeup high high high ref + slack2 Jog/slack ramp ON
Jog speed 1 lo w lo w high Jog speed 1 Jog/slack ramp O N
Jog speed 2 high low high Jog speed 2 Jog/slack ramp O N
Crawl high high low Cra wl speed Run mode ramp O N
Ramp Preset
Value gate
T 3 2 J O G
T 3 3 ST ART
T19 Default
Jog Mode
Select
PIN 42
PIN 29
Ramp
Auto
Preset
Stop Ramp
Time
(Also in
Speed Control)
PIN 65
T4 Default
Ramp
Input
PIN 26
PIN 30 Ramp Ext Preset.
Permanent action in run
mode, momentary action
at commencement of Jog.
System
Reset
Pulse
PIN 72 0
Fw d min
+ 0.5 %
-0.5 %
Rev min
PIN 43
Jog/Slack
Ramp
PIN 68 9
In Jog flag
PIN 71 4
In Slack flag

Table of Contents