EasyManua.ls Logo

Epson Stylus COLOR 3000

Epson Stylus COLOR 3000
177 pages
To Next Page IconTo Next Page
To Next Page IconTo Next Page
To Previous Page IconTo Previous Page
To Previous Page IconTo Previous Page
Loading...
Appendix
EPSON Stylus Color 3000 Service Manual
A-11
1
2
3
4
5
6
7
8
9
CN2
T1 PT-63
1
3
2
4
DB1
D2SBA60
C11
220U/200V
R12
0.91/2W
Q1
K2182
C15
2200P/1.2KV
3
11
2
C51
3300U/50V
ZD51
HZS5C-3
ZD81
HZS6C-3
ZD82
HZS5C-3
ZD83
HZS6C-3
D51
F5KQ100
1
2
3
4
5
6
7
IC51 L4962E
D55
ERB83-006
L51
300U/1.6A
+42V/0.55A
GND
+42V
GND
+5V/1.2A
GND
PSC
GND
+5V
FG
6.3V
C54
470U
C82
2.2U/50V
R58
15K
C81
0.033U
C58
2200P
R63
4.3K
C85
390P
ZD53
HZS9A1L
ZD84
HZS5C-3
ZD85
HZS6C-3
ZD86
HZS5C-3
C52
3300U/50V
4
5
R31
750K/0.5W
C13
0.01U
R18
200K/0.5W
R11
390/0.5W
C14
4700P
R19
20K
D2
11EQS04
C3
2200P
C4
2200P
C8
1000P
FG
FG
C2
0.1u
Q31
K1725
R32
39K
R13
4.7K
Q3
2PA1015Y
Q2
C4408
R16
270
R15
510
10
9
C12
100U
D1
11EQS06
R56
150
50V
C83
22U
R55
39K
R83
1K
C56
10U/50V
D83
1SS120
CY51
DRA03TC
ZD88
HZS5ALL
R82
100
ZD87
HZS24-1L
ZD52
HZS24-1L
Q84
K1398
C84
330U/6.3V
R86
100
R81
2K/0.5W
R84
39K
R85
470K
D86
11EQS06
Q83
DTA115ES
D85
1SS120
ZD89
HZS6A1L
Q82
DTC114YS
D82
1SS120
D84
1SS120
C55
0.1U
D52
10ELS2
D88
10ELS2
63V
8
6
25V
R14
510
2
1
3
IC1
TL431
C31
1000P
1
2
3
4
L1
HF2022-103Y0R7
C1
0.22U
R1
1M/0.5W
F1
2.5A/125V
or 250V
R2
3.9/5W
R21
10K
R20
3K
ZD31
HZS9A1L
R57
150
1
2
3
4
8
7
6
5
PC1
TLP521-2GB
R68
10K
R54
20K
R69
2K/0.5W
ZD90
HZS36-3
D81
1SS120
Q81
DTA115ES
N
L
1
2
CN1
100-120VAC
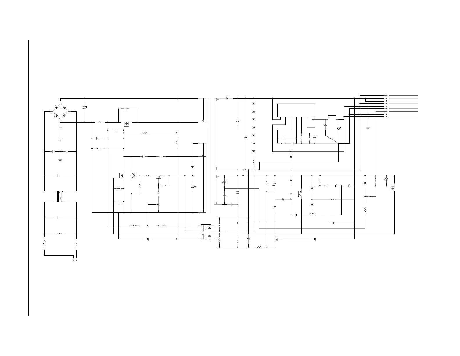
Figure A-5. C172 PSB Board Circuit Diagram

Table of Contents

Other manuals for Epson Stylus COLOR 3000

Related product manuals