EasyManua.ls Logo

Extra 300LT - Page 494

Extra 300LT
551 pages
Print Icon
To Next Page IconTo Next Page
To Next Page IconTo Next Page
To Previous Page IconTo Previous Page
To Previous Page IconTo Previous Page
Loading...
1
1
2
2
3
3
4
4
D D
C C
B B
A A
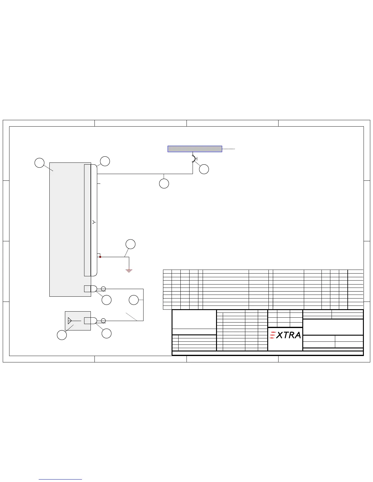
TRANSPONDER Mode S
02.11.05 HW
EA 300
TRANSPONDER TRT-800(H)
EA-93102.20
1A4 1
EA300929a
2SH-A
2SH-B
3SH-A
ATC
ANTENNA
14 VDC BUS
14 VDC Power
Power GND
Suppression input
ANTENNA
8
1
6
RG400
TNC with 50 OHM Match Bushing
ON Ground Switch
15
#20
#20
13
Suppression - I/O
XPDR
1SH
2A
Power GND
9
Light off
14
not connected = Light on
TXPC
5
RXPC
12
0204 03 BenennungNr01 Teilekennzeichen ZF Werkstoff Abmessungen Menge GewichtEinheit MaWi-Nr.
1
2
3
4
TRANSPONDER TRT-800
CIRCUIT BREAKER 2A
1
1
1
Stueck
Stueck
Stueck
Stueck
800ATC-( )-( )
04108
31508
31437
800EM-( )-( )
5
6
7
CONNECTOR AC ADDRESS
1
1
1
Stueck
Stueck
8
mtr
0,7
mtr
2,9
7277-2-2
ANTENNA KING KA-60 071-01591-0001
CONNECTOR TNC
CONNECTOR BNC
in Pos. 1
30705
11BNC-50-3-52/133
MIL-W-22759/16-20
WIRE AWG20
WIRE RG400 RG-400 FE4111
11TNC-50-3-177/133
1
4
7
3
2
5
7
8
6
X
X
X
X
X
X
X
X
X
X
X
X
X
X
X
2
ANTENNA COMANT CI-105
1 Stueck
30336010-10160-00X
OPTION 02 = TRT-800 mit KING KA-60 ANTENNE
OPTION 03 = TRT-800H mit COMANT CI-105 ANTENNE (für EA 300/SC & EA 300/LC)
2SH
3SH
in Pos. 1
FE4242
Die Gültigkeitszuordnung
von Version zu
dem jeweiligen Fertigungsauftrag
zu entnehmen.
Zuordnung links / rechts wird mit
*/* in allen Feldern angegeben.
04
03
02
01
Ver. Bezeichnung
Nr.: Änderung/Mod. Nr.: Datum Name
Letzte Bearbeitung:
Datum Name
Bearb.:
Gepr.:
Maßstab
SI.-Klasse
Oberflächenschutz
Projektion
Freimaßtoleranz
Oberfläche
Schutzvermerk nach DIN 34 beachten.
EDV-Kennung:
auf
Blatt von
Schwarze Heide 21
46569 Hünxe, Germany
Gepr.:
Flugzeugbaureihe
ist der Bauakte bzw.
24.03.14 HWA ÄM-300-14-05
A
OPTION 01 = TRT-800 mit COMANT CI-105 ANTENNE
1 TRANSPONDER TRT-800H 1 Stueck800ATC-H-( )-( ) 32090
X
X
X
X
X
X
X
X
see conforming ELEKTRIK SYSTEM

Table of Contents

Other manuals for Extra 300LT

Related product manuals