EasyManua.ls Logo

Extra 300LT - Page 495

Extra 300LT
551 pages
Print Icon
To Next Page IconTo Next Page
To Next Page IconTo Next Page
To Previous Page IconTo Previous Page
To Previous Page IconTo Previous Page
Loading...
1
1
2
2
3
3
4
4
D D
C C
B B
A A
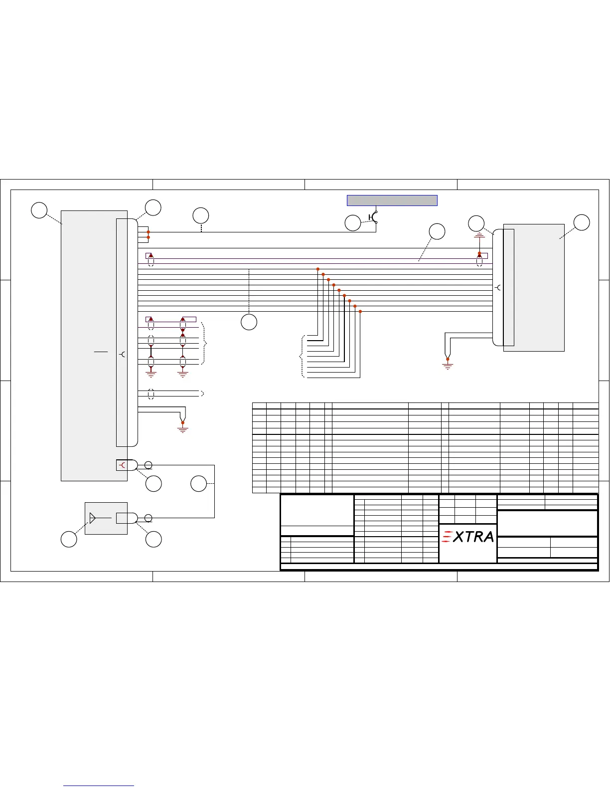
ACK A-30 / -08
14 VDC RADIO BUS
14.12.05 HW
XPDR
1SH
5A
GARMIN TRANSPONDER
AIRCRAFT POWER
14 V LIGHT
A1
A2
A4
B1
B2
B4
C1
C2
C4
D4
Arinc 429 In 1 B
GROUND
SUPPRESSION
ANTENNA
21
45
2
4
5
7
9
10
8
3
6
11
32
27
31
BNC with 50 OHM Match Bushing
See Installation Manual
190-00207-02
GROUND
43
16
#20
30
28
15
Arinc 429 In 1 A
Arinc 429 Out 2 A
Arinc 429 Out 2 B
42
Master ON
17Squat Switch
AIRCRAFT POWER
J3302
2SH-B
35
AUDIO OUT HI
AUDIO OUT LOW
TIS CONNECT SELECT
46
GTX-330/328
1
18
22
23
RS-232 IN 1
RS-232 OUT 1
TEST MODE SELECT
#20
VV1
J3301
2SH
24
25
RS-232 IN 2
RS-232 OUT 2
EXT STBY 13
#20
#20
#20
#24
#24
#24
#24
#24
#24
#24
#24
#24
A/C GND
green
white
light/brown
blue
yellow
orange
pink
violet
gray
green
white
light/brown
blue
yellow
orange
pink
violet
gray
black
dark/brown
#20
A4 1 1
#24
#24
#24
#24
#24
#24
#24
#24
#24
EA 300
TRANSPONDER GTX-330 / 328
EA-93102.21
0204 03 BenennungNr01 Teilekennzeichen ZF Werkstoff Abmessungen Menge GewichtEinheit MaWi-Nr.
TRANSPONDER GARMIN GTX-330
CIRCUIT BREAKER 5A
1
1
1
Stueck
Stueck
Stueck
Stueck
=
31506
04108
02239
30334
7277-2-5
BLIND ENCODER A-30
1
2 Stueck
mtr
3,5
mtr
=
A-30
ANTENNA KING KA-60 071-01591-0001
CONNECTOR BNC
FE4111
30705
11BNC-50-3-52/133
MIL-W-22759/16-20
WIRE AWG20
WIRE RG400 RG-400
00775
X
X
X
X
X
X
X
X
X
X
X
X
X
X
ANTENNA COMANT CI-105
1 Stueck
30336010-10160-00
1
2
3
4
5
6
7
8
2
3SH-A
ATC
ANTENNA
2
5 6
5
EA300930a
1
9
7
4
11
to GPS
ws
bl
ws
bl
ws
bl
ws
bl
ws
bl
to GPS and EFIS
to AUDIO
8
10
3
mtr
=
WIRE AWG24
MIL-W-22759/16-24
FE4011XX
9 Stueck
1
CONNECTOR SUBD 62P KIT = =XX
10 Stueck
1
CONNECTOR SUBD 25S = =XX
green
white
light/brown
blue
yellow
orange
pink
violet
gray
Option
Option
Option
#24
#20
#24
#24
RG-400
3SH
4SH-A
BLIND ENCODER
GROUND
14VDC
A1
A2
A4
B1
B2
B4
C1
C2
C4
2
3
4
5
9
10
11
12
13
15
8
6 STROBE
4SH
2SH-A
in Pos. 4
in Pos. 1
25
RS-232 OUT 2
ws
bl
ws #24
Switched Power Out 62
#20
24RS-232 IN 2
bl bl
RS 232 Out 2
7
#24 #24 wsws
A/C GND
1 Stueck
TRANSPONDER GARMIN GTX-328X
1
BLIND ENCODER A-30-08
StueckA-30-08 1
X
X
3
05
X
X
X
X
X
X
X
X
X
X
X
X
X
X
X
X
X
X
X
X
X
X
X
XX
11 mtr= =XX
Die Gültigkeitszuordnung
von Version zu
dem jeweiligen Fertigungsauftrag
zu entnehmen.
Zuordnung links / rechts wird mit
*/* in allen Feldern angegeben.
04
03
02
01
Ver. Bezeichnung
Nr.: Änderung/Mod. Nr.: Datum Name
Letzte Bearbeitung:
Datum Name
Bearb.:
Gepr.:
Maßstab
SI.-Klasse
Oberflächenschutz
Projektion
Freimaßtoleranz
Oberfläche
Schutzvermerk nach DIN 34 beachten.
EDV-Kennung:
auf
Blatt von
Schwarze Heide 21
46569 Hünxe, Germany
Gepr.:
Flugzeugbaureihe
ist der Bauakte bzw.
MIL-C-27500-24TG2
WIRE 2xAWG24
cancelled by
ACK A-30-08
FE4008
= =
=
A 01.05.09 HWÄM-300-09-04

Table of Contents

Other manuals for Extra 300LT

Related product manuals