EasyManua.ls Logo

Huawei NetCol5000-A025 - Installation Layout Principles

Huawei NetCol5000-A025
318 pages
Print Icon
To Next Page IconTo Next Page
To Next Page IconTo Next Page
To Previous Page IconTo Previous Page
To Previous Page IconTo Previous Page
Loading...
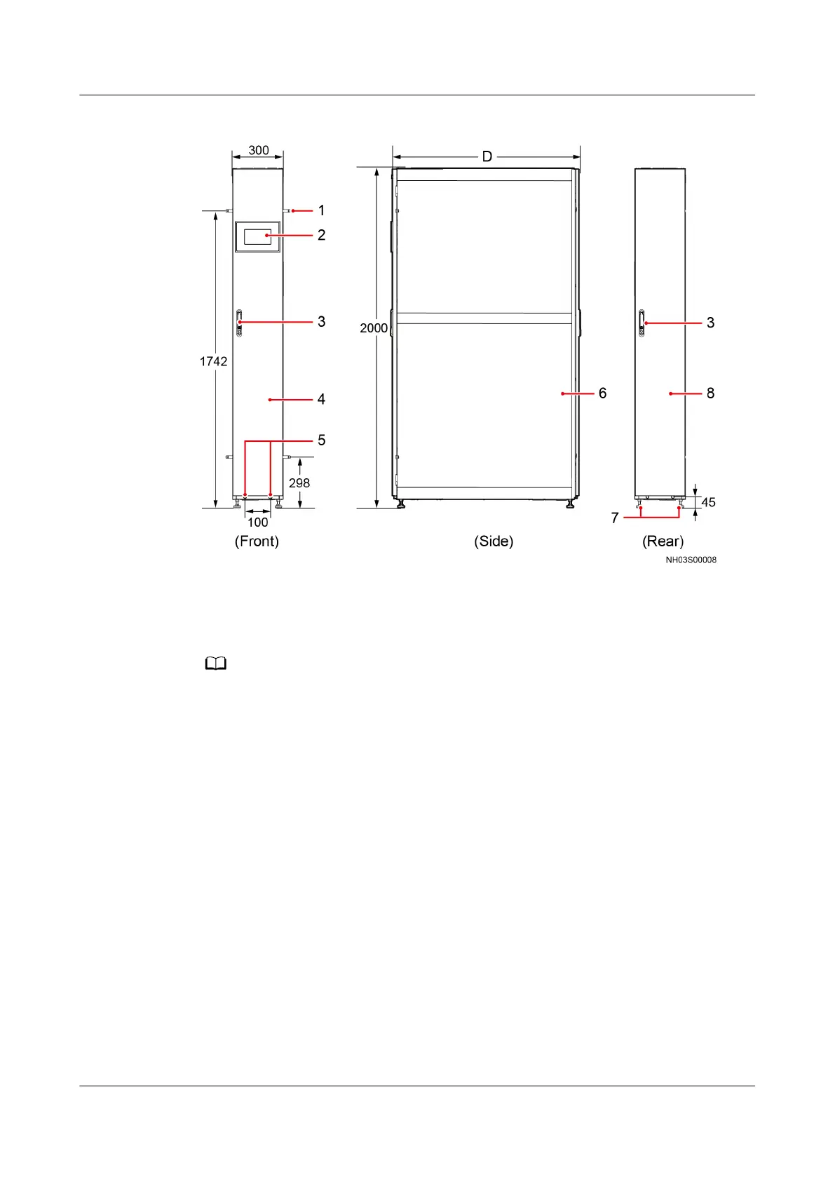
Figure 3-7 External structure (unit: mm)
(1) Connecting kits (2) Control panel (3) Door lock (4) Front door
(5) Fixing port (6) Side panel (7) Leveling foot (8) Rear door
NO TE
In the gure, D is the depth of the cabinet. It can be 1100 mm or 1200 mm.
3.1.5 Installation Layout Principles
Layout principles for installing the NetCol5000-A are as follows:
If the outdoor unit is placed higher than the indoor unit, the maximum
vertical distance between them is 20 m. To ensure the NetCol5000-A
reliability, make an oil trap every 5 m to 6 m along pipes in the vertical
direction.
If the indoor unit is placed higher than the outdoor unit, the maximum
vertical distance between them is 5 m.
NetCol5000-A025 In-row Air Cooled Smart Cooling
Product
User Manual (300 mm Width) 3 Installation Guide
Issue 15 (2020-12-10) Copyright © Huawei Technologies Co., Ltd. 40

Table of Contents

Other manuals for Huawei NetCol5000-A025

Related product manuals