EasyManua.ls Logo

MD Helicopters MD Explorer - Page 902

MD Helicopters MD Explorer
2144 pages
Print Icon
To Next Page IconTo Next Page
To Next Page IconTo Next Page
To Previous Page IconTo Previous Page
To Previous Page IconTo Previous Page
Loading...
CSP900RMM2 MD Helicopters, Inc.
Rotorcraft Maintenance Manual
Page 104
Original
29-00-00
902 CONFIG
8
900 CONFIG
J2
J1
J3
P423
P421
P425
P155J155
J155 P155
E
GS107-E
P171J1
J9P170
P103
J5
J3
P105
E
GS107-B
P171
J1
J6P172
P374J2
P117J1
PRESS XDCR
TEMP SWITCH
SYS SELECT
SOLENOID
L
M
N
87
86
AOG RELAY
K1-7/8
A2
A1
A3
X1 X2
B3
B1
B2
37
85
86
S
R
89
88
87
85
8483
84
85
86
8718
17
16
15
R
W
Y
X
V
U
T
A
B
B
A
A
B
C
D
HYD OIL TEMP 2 HI
HYD OIL PRESS 2 EXCIT HI
HYD OIL PRESS 2 EXCIT LO
HYD OIL PRESS 2 LO
HYD OIL PRESS 2 HI
CB48
CFU
5A
RIGHT
GENERATOR
BUS
SYS 1
SYS 2
OFF
3
2
1
6
SEE ELECTRICAL INTERCONNECT DIAGRAM 98-40-00
6
6
S5
HYD TEST SWITCH
A612
FWD INTERCONNECT PANEL
A401
MANIFOLD/
RESERVOIR 2
A612
FWD INTERCONNECT PANEL
A2
IIDS
A620
ELECTRICAL LOAD CENTER
W124
W123 W129
W122
W123
W124
A606
UTILITY CONTROL PANEL
Q
Q
QQ QQ
QQ
9G29-004-2B
84
83
7
7
HYD TEST
8
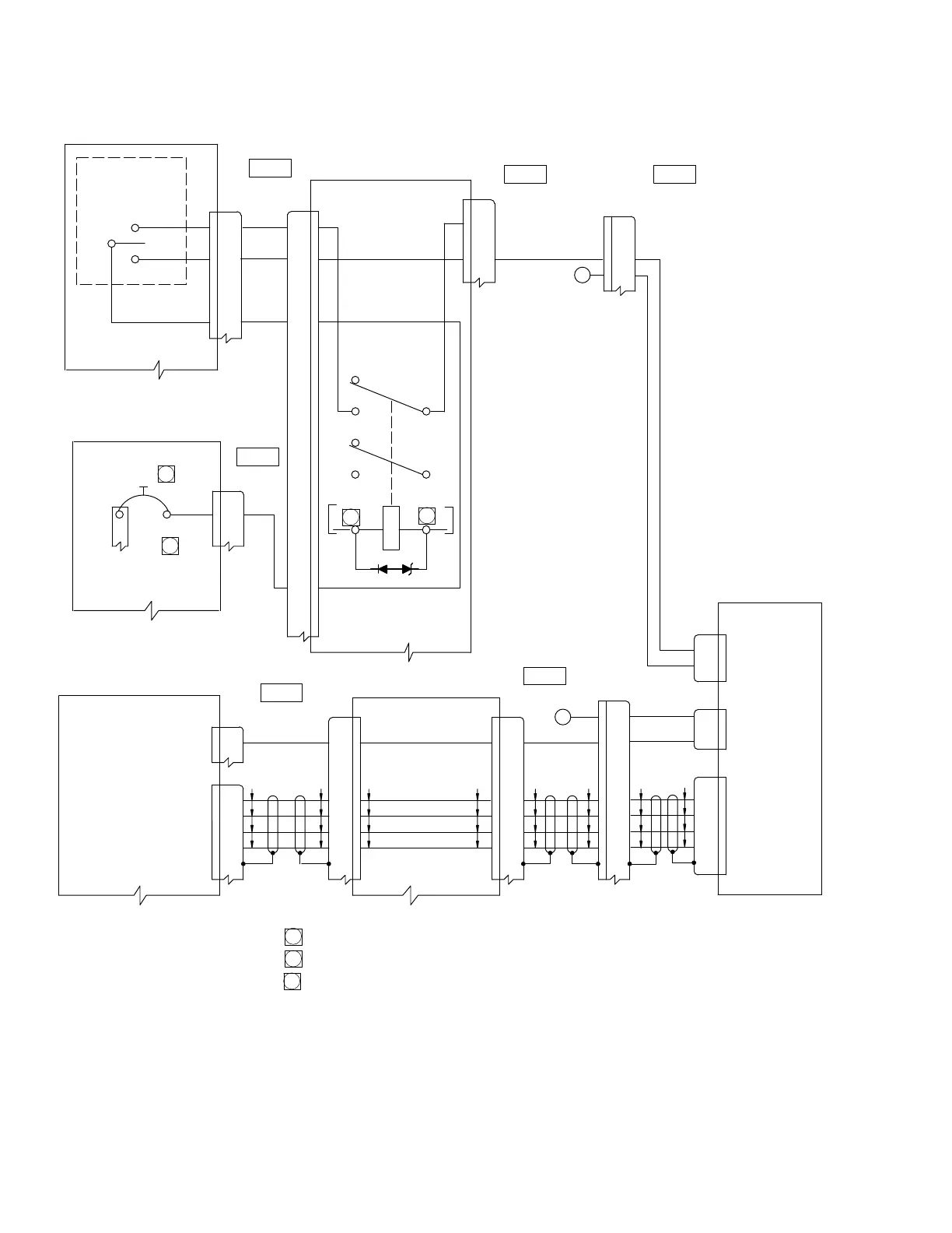
Figure 102. Hydraulic System 2 Wiring Diagram

Table of Contents

Related product manuals