EasyManua.ls Logo

Ricoh B039 - Minimum Space Requirements; Power Requirements

Ricoh B039
513 pages
Print Icon
To Next Page IconTo Next Page
To Next Page IconTo Next Page
To Previous Page IconTo Previous Page
To Previous Page IconTo Previous Page
Loading...
Installation
INSTALLATION REQUIREMENTS
SM 1-3 B039/B040/B043
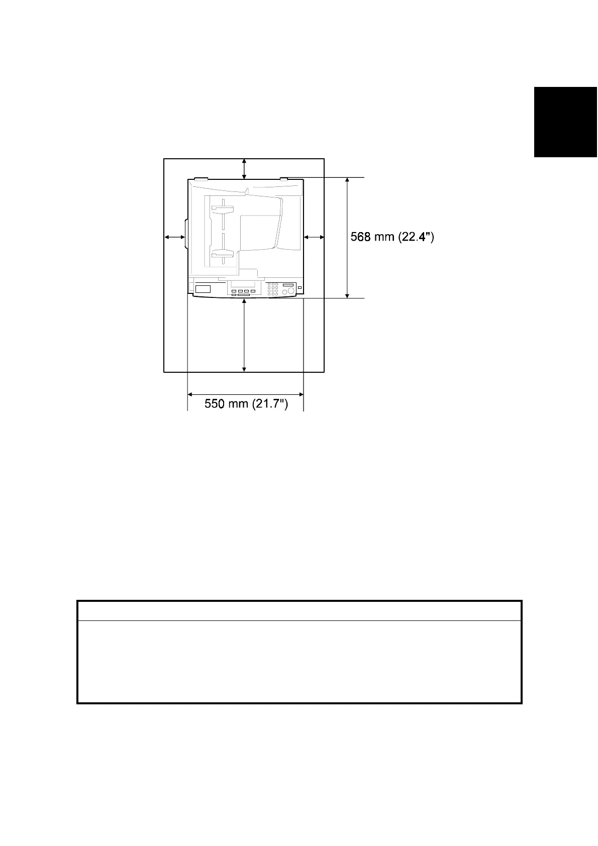
1.1.3 MINIMUM SPACE REQUIREMENTS
Place the copier near the power source, providing clearance as shown:
NOTE: 1) The recommended 750 mm front space is sufficient to allow the paper
tray to be pulled out. Additional front space is required to allow
operators to stand at the front of the machine.
2) The recommended 10 mm right space is for installation only. Additional
right space is required to allow operators to fix paper jams and use the
by-pass tray.
1.1.4 POWER REQUIREMENTS
!
CAUTION
1. Make sure that the wall outlet is near the copier and easily accessible.
After completing installation, make sure the plug fits firmly into the
outlet.
2. Avoid multi-wiring.
3. Be sure to ground the machine.
1. Input voltage:
America, Taiwan:110 – 120 V, 50/60 Hz, 12 A
Europe, Asia: 220 – 240 V, 50/60 Hz, 7 A
B039I145.WMF
A: Front > 750 mm (29.6")
B: Left > 10 mm (0.4")
C: Rear > 10 mm (0.4")
D: Right > 10 mm (0.4")
[C]
[D][B]
[A]

Table of Contents

Related product manuals