EasyManua.ls Logo

SICK S3000 PROFINET IO - Accessories; Mounting Bracket Dimensions

SICK S3000 PROFINET IO
140 pages
Print Icon
To Next Page IconTo Next Page
To Next Page IconTo Next Page
To Previous Page IconTo Previous Page
To Previous Page IconTo Previous Page
Loading...
Dimensional drawings
120
175
193,2
46,5
31,5
16,5
22,5
87,5
Ø9
DIN74 Am6
220
160
80
30
Ø9
Ø9
46
60
71
67
106,1
71
51,8
102
183
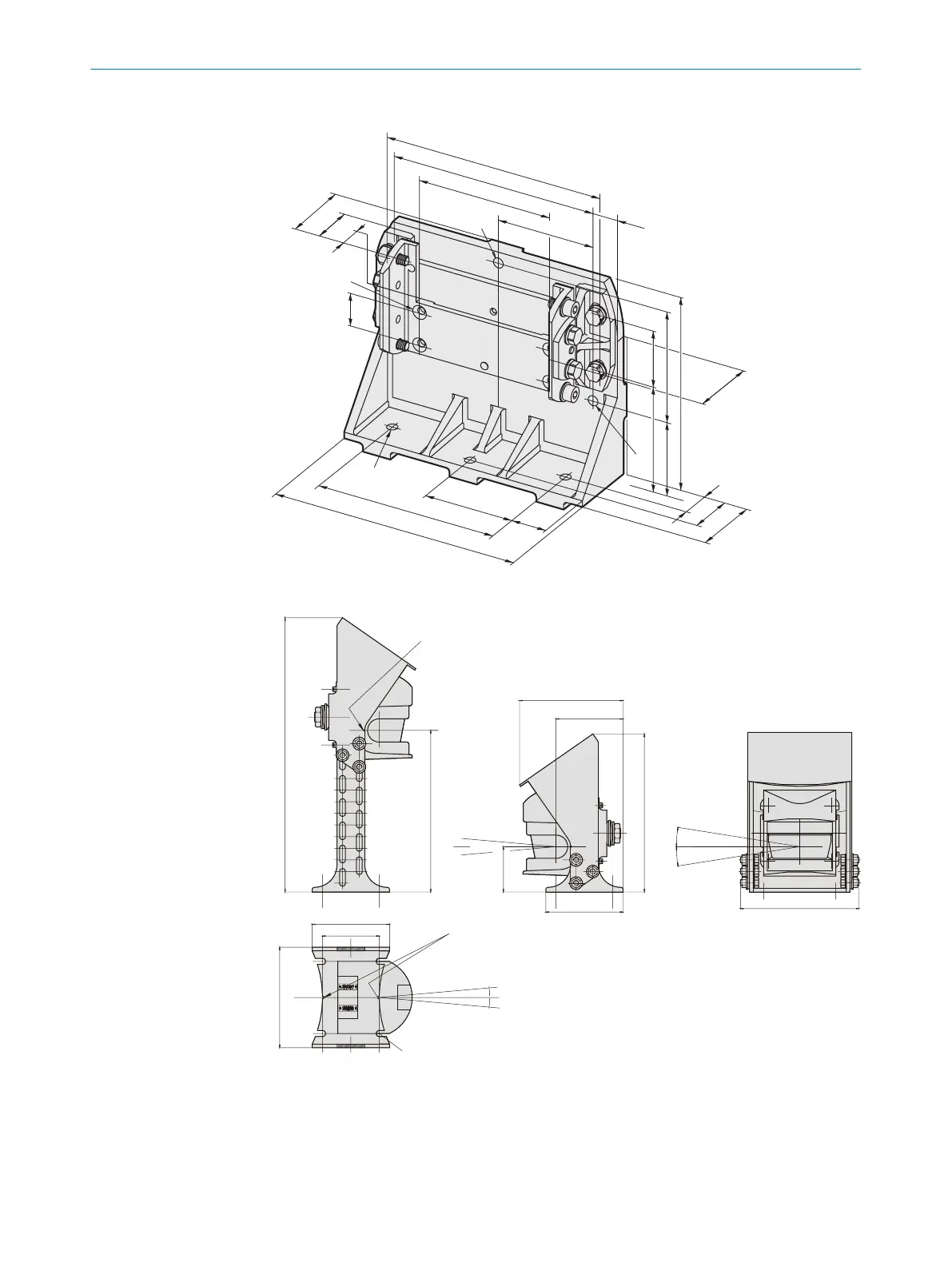
Figure 80: Dimensional drawing mounting kit 1, 2 and 3 (mm)
1
1
222,51
144,02
166
122
4 × Ø13
166
255
≤ 590
≤ 350
≥ 100
≥ 340
Figure 81: Dimensional drawing heavy duty mounting bracket (mm)
1
Scan plane origin
15 ACCESSORIES
126
O P E R A T I N G I N S T R U C T I O N S | S3000 PROFINET IO, S3000 PROFINET IO-OF 8013291/ZA19/2019-11-14 | SICK
Subject to change without notice

Table of Contents

Other manuals for SICK S3000 PROFINET IO

Related product manuals