EasyManua.ls Logo

Siemens SINUMERIK 840D Simodrive 611 digital - 3.6 MPI Interface for Customer’s Operating Panel

Siemens SINUMERIK 840D Simodrive  611 digital
298 pages
Print Icon
To Next Page IconTo Next Page
To Next Page IconTo Next Page
To Previous Page IconTo Previous Page
To Previous Page IconTo Previous Page
Loading...
3
03/2006
3.6 MPI interface for customers operating panel
3-31
© Siemens AG 2006 All Rights Reserved
SINUMERIK 840D/810D Start-Up Guide (IADC) – 03/2006 Edition
3.6 MPI interface for customers operating panel
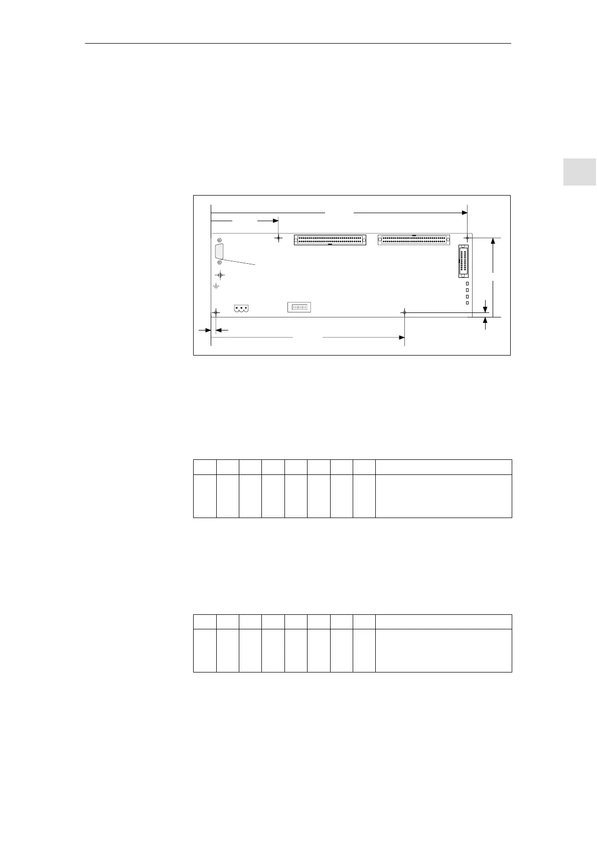
The interface is used to connect a customers operating panel. The module has
64 digital inputs and 64 digital outputs with C-MOS level (5V) for this purpose.
The module must have at least firmware release V 03_01_01.
ON
X231
LEDs
S3
X20
MPI connection
X10
X221X211
H3
H1
H4
H2
289.4
64.7
207.3
92.7
7.2
3.5
Holes 3.6
Equipotential bonding connection
"
Fig. 3-8 Front view of MPI interface for customers operating panel
If only the customer’s operating panel is connected, the bus address should be
set to 6 as for the MSTT (standard application).
Table 3-5 Setting for 840D: switch S3 interface for customer’s operating panel
1 2 3 4 5 6 7 8 Meaning:
on off on off on on off on Baud rate: 1.5 MBaud (BTSS)
Cyclical transmission interval:
100 ms
Bus address: 6
If only the customer’s operating panel is connected, the bus address should be
set to 14 as for the MSTT (standard application).
Table 3-6 Setting for 810D: switch S3 interface for customer’s operating panel
1 2 3 4 5 6 7 8 Meaning:
off off on on on on off on Baud rate: 187.5 kBaud
Cyclical transmission interval:
100 ms
Bus address: 14
Interface
Position of the
interfaces
Switch S3, default
setting for
SINUMERIK 840D
Switch S3, default
setting for
SINUMERIK 810D
3 Settin
s, MPI/BTSS

Table of Contents

Related product manuals