EasyManua.ls Logo

Volvo XC70 2012 - Group 88 Internal Equipment Rear-View Mirror with Automatic Dimming

Volvo XC70 2012
364 pages
Print Icon
To Next Page IconTo Next Page
To Next Page IconTo Next Page
To Previous Page IconTo Previous Page
To Previous Page IconTo Previous Page
Loading...
TP 39217202 XC70(08-) & S80(07-) 2012 207
1
2
11A/2
30+
1
2
11A/1
RD-BK
GN-VT
GY-BK
BU
RD-BU
31/10
1
2
11B/17
C5:2 C1:63
C4:11
C5:1 C1:13
C1:7
4/56
CEM
CAN
52
31
R7
2/31
1
2
F20
1
2
11B/27
73/4010
73/4012
73/4014
74/412
BK-WHBK-WHBK-WH
BK-WH
BN-VTBN-VT
BN-VT
BN-VT
2
1
3
2
9
74/401
2
4/6
C°/F°
LIN
CCM
LIN
8/48
HUS ECC
MIRROR
15/31
73/4047
I06046
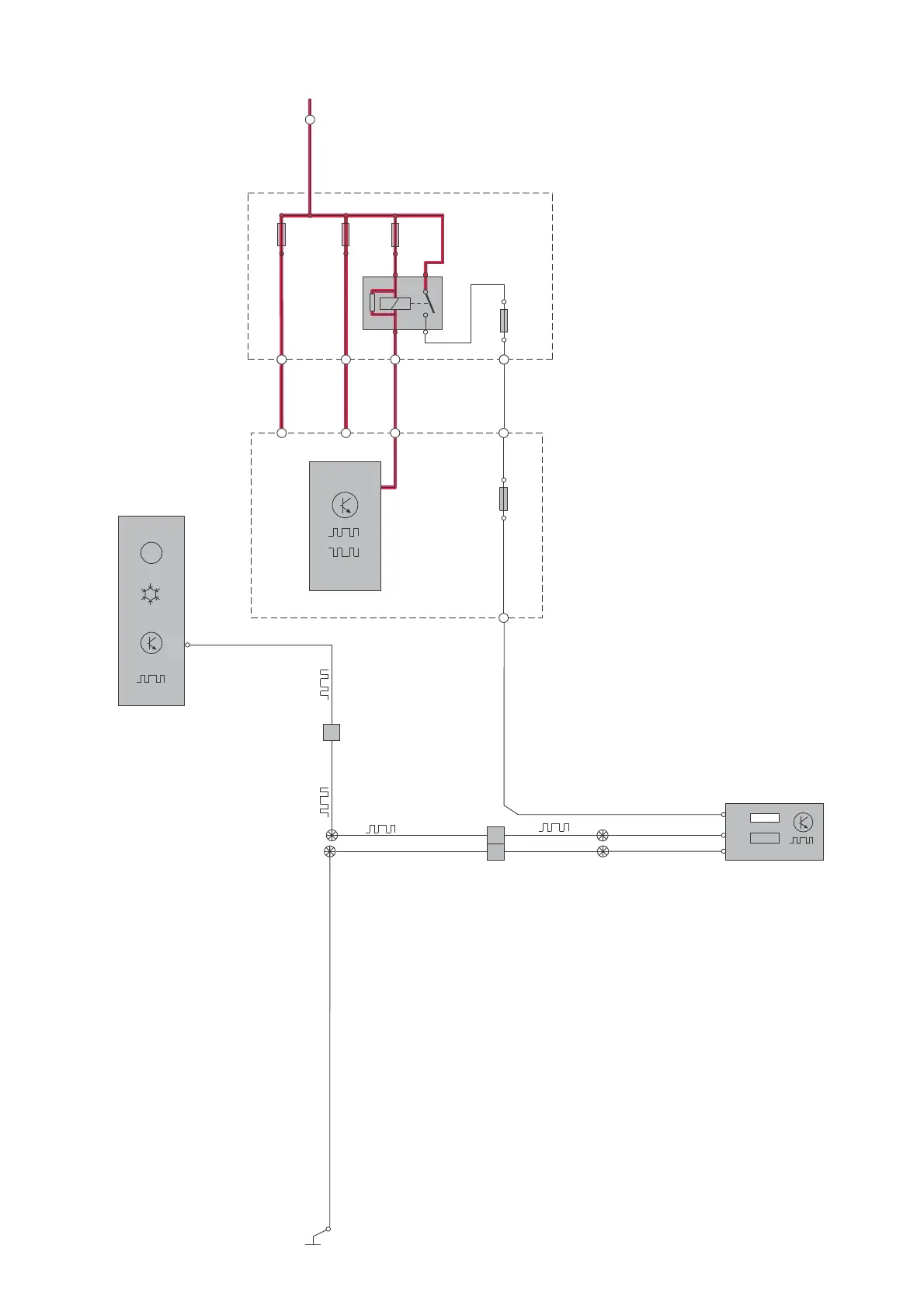
Group 88 Internal equipment
Rear-view mirror with automatic dimming

Table of Contents

Other manuals for Volvo XC70 2012

Related product manuals