EasyManua.ls Logo

Bardac PLX - 14.6 Mechanical dimensions PL;X 65 - 145

Default Icon
235 pages
Print Icon
To Next Page IconTo Next Page
To Next Page IconTo Next Page
To Previous Page IconTo Previous Page
To Previous Page IconTo Previous Page
Loading...
Installation 209
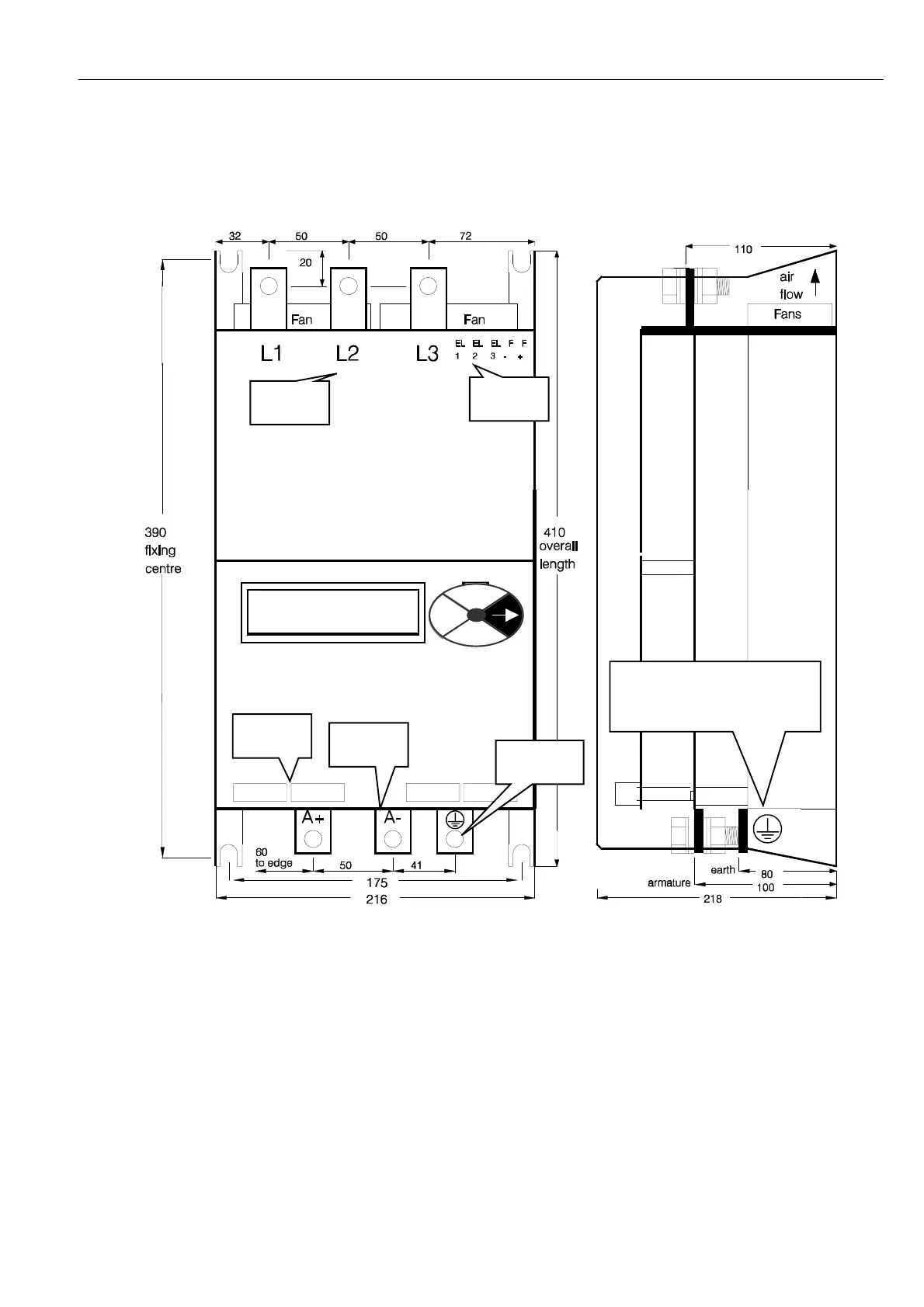
14.6 Mechanical dimensions PL/X 65 - 145
Unit w eight 11Kg
Symbolic drawing sho wn with end caps removed
14.6.1.1 Mounting PL/X 65 - 145
Four corner slots are provided to mount the unit. Use M8 (5/16 in) scre ws.
All mounting hole di mensions are + /- 2 mm.
A substantial earth connection should be made to the busbar provided.
Nominal cooling air throughput is specified in the rating table. (Use cool, clean, dry, filtered ai r).
Do not block the heatsink fins. Allow at least 100mm (4 in) space above and belo w the unit.
Ensure connections to pow er terminals are tight. Power terminal fastenings are M10
See 14.10 Terminal tightening torques.
Mount the main contactor so as to avoid mechanical operating shock being transmitted to PL/X busbars.
E. g. Ensure Line reactor is fitted between contactor a nd PL/X.
The units must be orientated vertically as sho wn.
The dimensions on this dra wing are for the footprint.
Overall dimensions are Width 216 Height 378 Depth 218
Unit weight 11Kg
International ground symbol
(black on green background)
identifies main equipment
g
r
ou
n
d
co
nn
ect
i
o
n
o
n h
eats
ink
Control
terminals
3 po w er
terminals
PRESS RIGHT KEY FOR
ENTRY MENU LE VEL 1
2 po w er
terminals
Main earth
terminal
Auxiliary
terminals

Table of Contents