EasyManua.ls Logo

Bardac PLX - 14.7 Mechanical dimensions PL;X 185 - 265

Default Icon
235 pages
Print Icon
To Next Page IconTo Next Page
To Next Page IconTo Next Page
To Previous Page IconTo Previous Page
To Previous Page IconTo Previous Page
Loading...
210 Installation
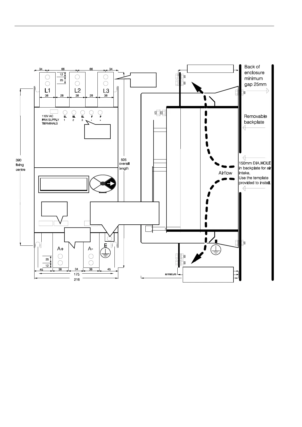
14.7 Mechanical dimensions PL/X 185 - 265
Unit w eight 17Kg. Symbolic dra wing shown with end caps removed
14.7.1.1 Mounting PL/X 185 - 26 5
Four corner slots are provided to mount the unit. Use M8 (5/16 in) scre ws.
All mounting hole di mensions are + /- 2 mm. The dimensions on this dra wing are for the footprint.
A substantial earth connection should be made to the busbar provided.
Nominal cooling air throughput is specified in the rating table. (Use cool, clean, dry, filtered air).
Allo w at least 100mm (4 in) space above and below the unit.
Ensure connections to pow er terminals are tight. Power terminal fastenings are M10.
See 14.10 Terminal tightening torques.
Mount the main contactor so as to avoid mechanical operating shock being transmitted to PL/X busbars.
E. g. Ensure Line reactor is fitted between contactor a nd PL/X.
The units must be orientated vertically as sho wn.
A template is provided to assist in cutting the venting aperture.
These models require an additional 110V A C 50 V A fused supply for the main fan. The connection terminals
are at the top left hand corner of the unit.
The first time the unit is used and the main contactor energised, confirm that the internal fan is operating.
This will be evident by a strong airflow over the top and bottom busbars to wards the front of the enclosure
Unit weight 17Kg
PRESS RIGHT KEY F OR
EN TRY MENU LEVEL 1
International ground symbol (black
on green background) identifies
main equipment ground connection
on heatsink
Control
terminals
Auxiliary
terminals
3 po w er
terminals
2 po w er
terminals
Earth Stud height 4 5mm
Busbar height 180mm
Overall height 3 14mm
Busbar height 180mm

Table of Contents