EasyManua.ls Logo

Intermac Primus 184 - Primus 324 pendolare

Default Icon
132 pages
Print Icon
To Next Page IconTo Next Page
To Next Page IconTo Next Page
To Previous Page IconTo Previous Page
To Previous Page IconTo Previous Page
Loading...
12 Technical characteristics
BIESSE S.p.A. © - p724k0003.fm251111
91
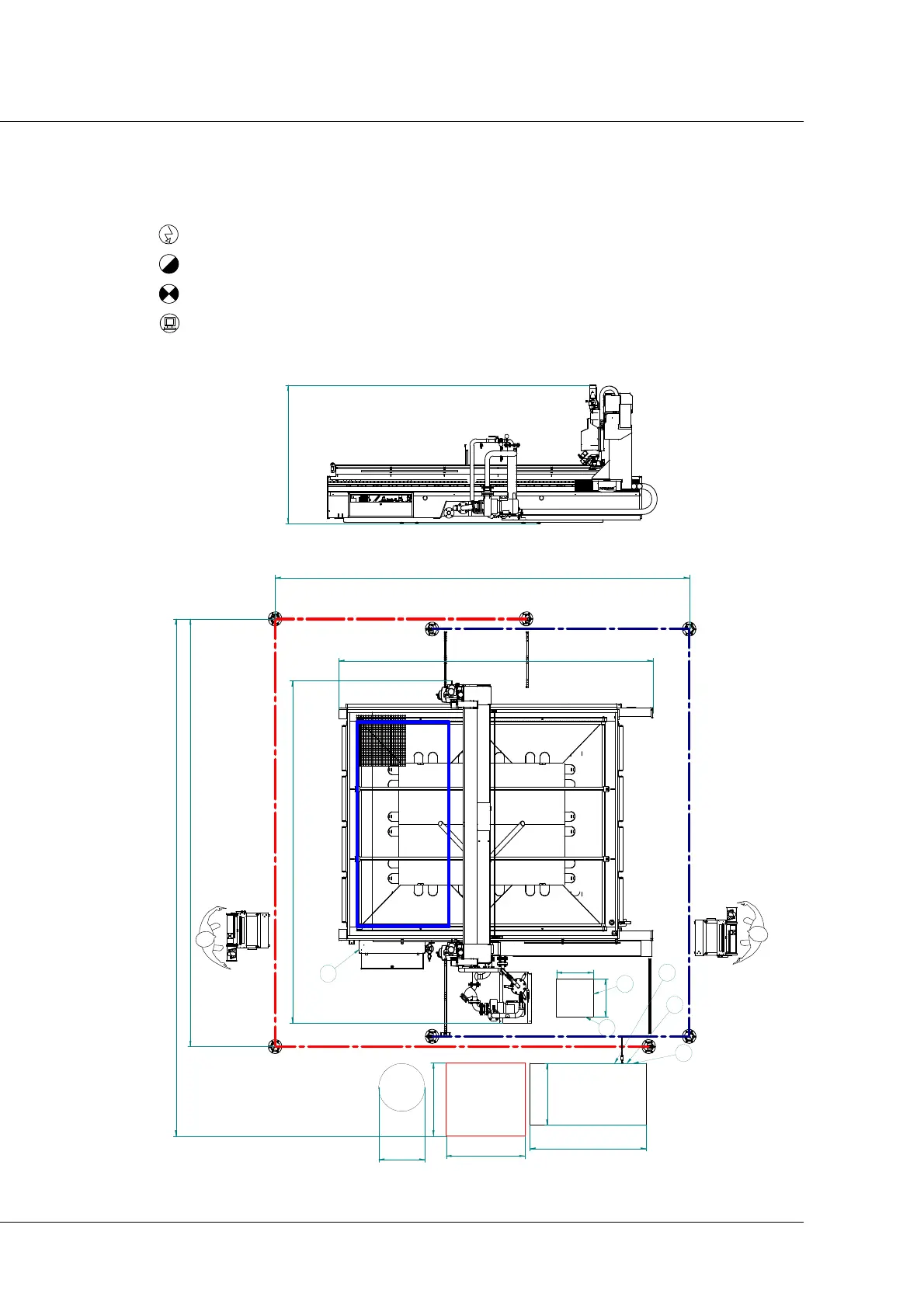
Primus 324 pendolare
point of connection to the electric system; (height from the ground = 930mm)
point of connection to the pneumatic system; (height from the ground = 740mm)
point of connection to the water system; (height from the ground = 450mm)
cabinet with PC
Porta
BIG-BAG
(opt.)
Inte nsifica tore
UHP
Tram oggia
A. Elettrico
1:20
1
6710
6760
1900
970
1290
1150
O 750
600
600
3
4
2
5
6
5130
5380
2180
8120

Table of Contents