EasyManua.ls Logo

Keysight Technologies B1505A - Page 144

Keysight Technologies B1505A
298 pages
Print Icon
To Next Page IconTo Next Page
To Next Page IconTo Next Page
To Previous Page IconTo Previous Page
To Previous Page IconTo Previous Page
Loading...
4-12 Keysight B1505A Configuration and Connection Guide
N1272A and N1273A Connection Guide
Output Connection
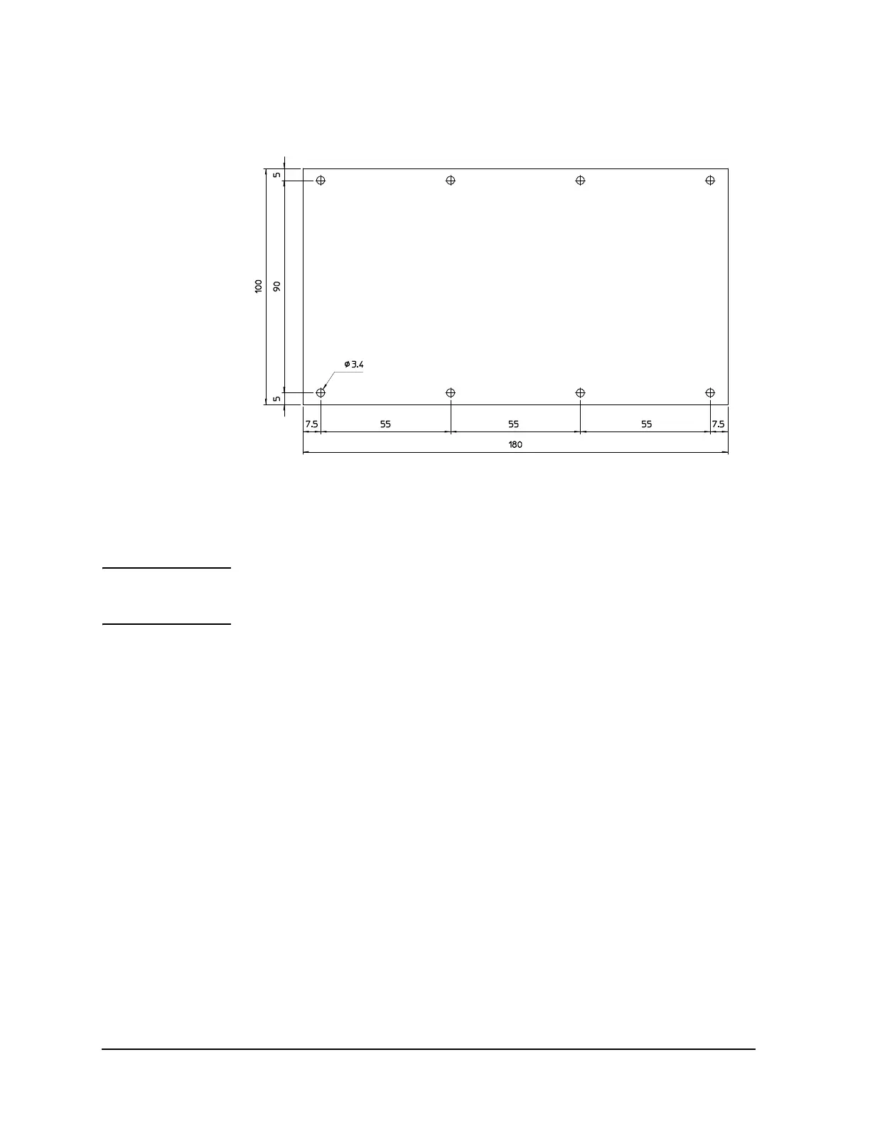
Figure 4-8 Dimensions and Screw Holes of Blank Board
Instruction:
1. Remove the dummy board from the blank module using a T15 Torx screwdriver.
2. Make a socket board by processing a blank board or the dummy board and mount
your device socket onto the board.
WARNING Make enough space between the socket terminal and the shield/chassis, for example,
about 1 mm for maximum 200 V output and 6 mm for 3000 V, to prevent discharge
and any accident.
3. Fix the socket board to the blank module using the screws and tooth washers.
4. Remove the bottom cover of the blank module using a T10 Torx screwdriver.
5. Assemble cables using the wire and lug terminals.
Cut the appropriate length of the wire, tear off the coating of wire ends, and then
secure the lug terminals to the wire ends using a caulking tool.
6. Connect one end of all cables to the upside terminals on the blank module.
Remove screws and tooth washers from the terminals, and fix the lug terminal of
the cable end in order of a washer, a lug terminal, a tooth washer, and a screw.
When fixing the lug terminal, secure a screw by a T15 Torx screwdriver with fixing
the bottom nut by a 9 mm wrench. And, pass the cables through the opening of the
blank module.
7KLFNQHVVPP

Table of Contents

Other manuals for Keysight Technologies B1505A

Related product manuals