EasyManua.ls Logo

Mitsubishi LANCER EVOLUTION-V 1998 - Page 143

Mitsubishi LANCER EVOLUTION-V 1998
526 pages
Print Icon
To Next Page IconTo Next Page
To Next Page IconTo Next Page
To Previous Page IconTo Previous Page
To Previous Page IconTo Previous Page
Loading...
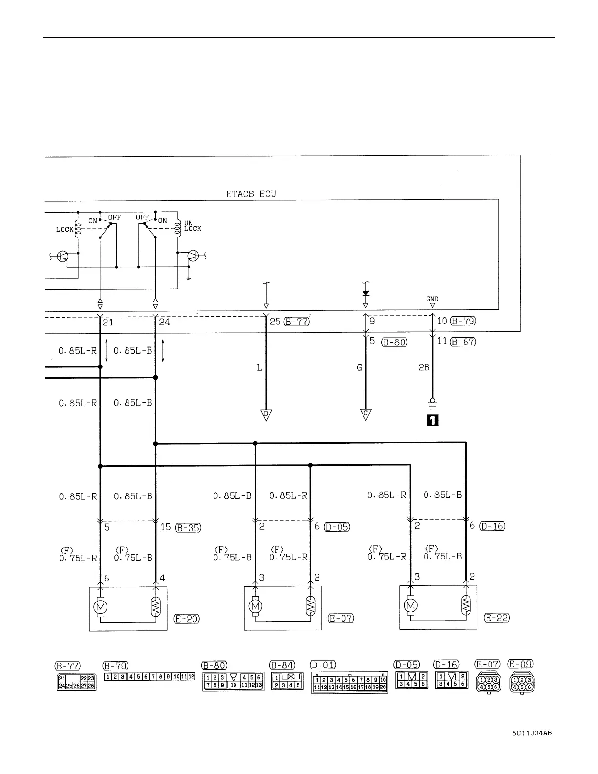
CIRCUIT DIAGRAM
Central Door Locking System
<Vehicles with Keyless Entry System>
DOOR LOCK
ACTUATOR
(FRONT: LH)
DOOR LOCK
ACTUATOR
(REAR: RH)
DOOR LOCK
ACTUATOR
(REAR: LH)
C-45

Table of Contents

Related product manuals