EasyManua.ls Logo

Mitsubishi LANCER EVOLUTION-V 1998 - Fully Automatic Air Conditioner

Mitsubishi LANCER EVOLUTION-V 1998
526 pages
Print Icon
To Next Page IconTo Next Page
To Next Page IconTo Next Page
To Previous Page IconTo Previous Page
To Previous Page IconTo Previous Page
Loading...
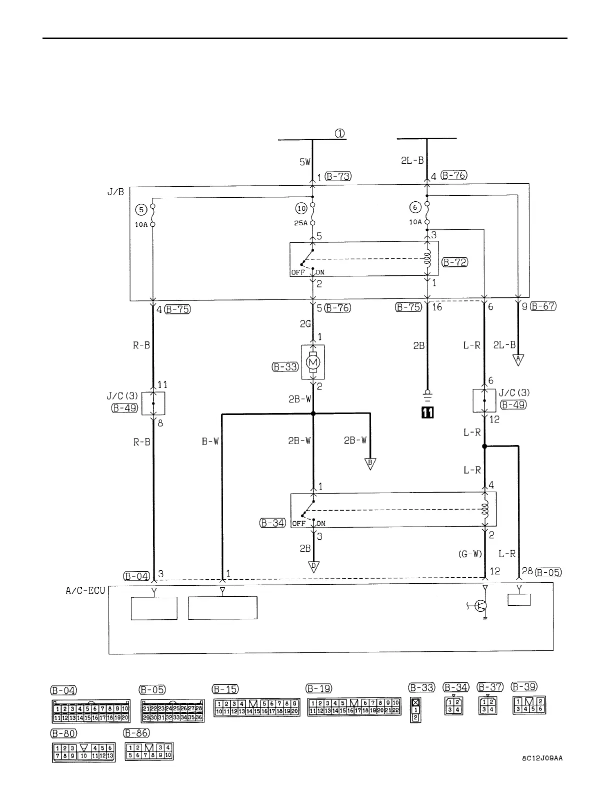
CIRCUIT DIAGRAM Fully Automatic Air Conditioner
FUSIBLE LINK
IGNITION
SWITCH (IG2)
BLOWER
MOTOR
RELAY
BLOWER
MOTOR
BLOWER
HIGH SPEED
RELAY
BACK-UP
POWER
SUPPLY
POWER TRAN-
SISTOR DRIVE
CIRCUIT
POWER
SUPPLY
C-54
FULLY AUTOMATIC AIR CONDITIONER

Table of Contents

Related product manuals