EasyManua.ls Logo

Oxford Instruments OpAL - Page 236

Oxford Instruments OpAL
342 pages
Print Icon
To Next Page IconTo Next Page
To Next Page IconTo Next Page
To Previous Page IconTo Previous Page
To Previous Page IconTo Previous Page
Loading...
OpAL Oxford Instruments Plasma Technology Installation Data
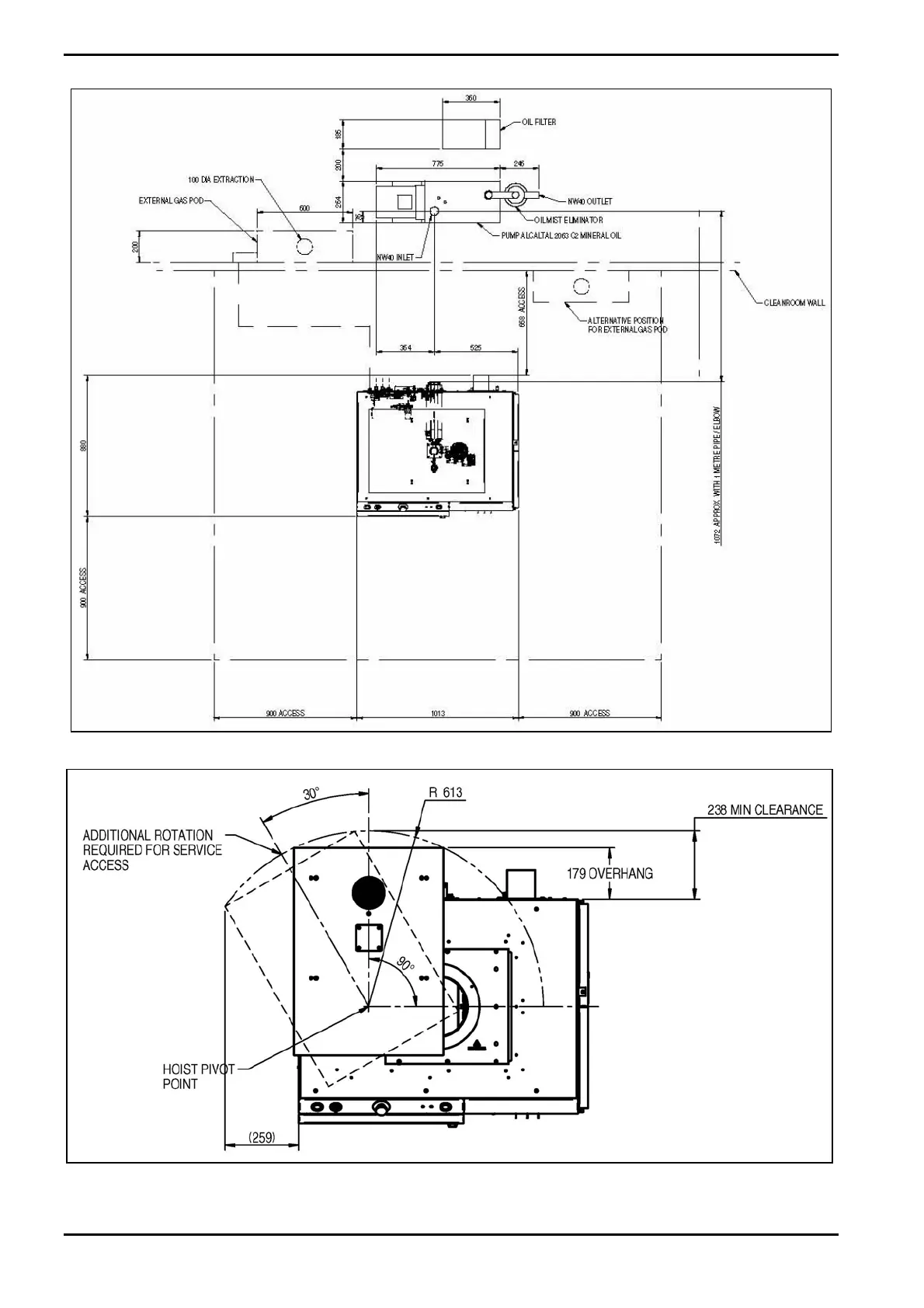
Fig 3: Plan view
Fig 4: Plan view with process chamber open
Installation Data
Issue 3: October 08 Page 8 of 22 Printed: 7-Aug-09, 8:03

Table of Contents

Related product manuals