EasyManua.ls Logo

Oxford Instruments OpAL - Page 68

Oxford Instruments OpAL
342 pages
Print Icon
To Next Page IconTo Next Page
To Next Page IconTo Next Page
To Previous Page IconTo Previous Page
To Previous Page IconTo Previous Page
Loading...
OpAL Oxford Instruments Plasma Technology System Manual
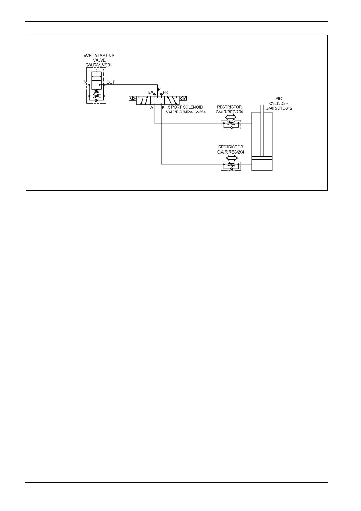
Fig 3-13: Hoist pneumatic circuit
Description
Issue 1: August 07 Page 3-12 of 46 Printed: 07 August 2009 07:42

Table of Contents

Related product manuals