EasyManua.ls Logo

RFL 9785 - Figure 19-4. Schematic, RFL 9785 Solid-State Input I;O (Dwg. No. D-106439-3-A)

Default Icon
325 pages
Print Icon
To Next Page IconTo Next Page
To Next Page IconTo Next Page
To Previous Page IconTo Previous Page
To Previous Page IconTo Previous Page
Loading...
Because RFL and Hubbell® have a policy of continuous product improvement, we reserve the right to change designs and specications without notice.
1
2
A23
A32
C32
C1
A24
2
3
8
7
6
5
1
4
2
3
8
7
6
5
1
4
C3
A21
A1
A26
3
4
5
6
C10
1
A10
C2
A2
C31
2
C30
5
3
C4
C9
A9
A4
A3
7
4
3
A25
A13
A14
C18
C17
6
2
6
1
4
A17
C29
5
12
11
14
12
C28
R17
CR14
TB1
TB1
P1
C14
P1
R9
P1
P1
P1
R10
R7
U1
U2
R8
CR12
CR11
L8
L7
L6
L5
J5
J4
P1
P1
P1
P1
CR10
CR9
R13
R14
R16
R12
R15
R11
C7
C8
C12
C11
C10
C9
TB1
TB1
TB1
TB1
P1
P1
P1
P1
R19
R18
P1
P1
C16
C15C13
P1
P
1
P
1
P1
P1
TB1
P1
P1
P1
P1
P1
R20
P1
P1
K1
P1
+5V
+5V
TRIP_V
K1-C
K1-NO
K1-NC
TRIPIN_1
DATA
CLK
CHKBK
CHKBKLEV
TRIPIN_2
TIP
CHASSIS
TRIPSENT_RLY_TIP
+5V
+5V
RLY_RET
1/2W
162
1N4003
3KV
.01uF
221
221
4.75K
6N139
6N139
4.75K
1N4003
1N4003
10uH
10uH
10uH
10uH
.1uF
.1uF
3KV
.01uF
3KV
.01uF
3KV
.01uF
3KV
.01uF
N/A
N/A
25V
100uF
3KV
.01uF
3KV
.01uF
11
101461
N/A
N/A
106435-4
106435-3
J9
BLOCKOUT_2_SS
BLOCKOUT_1_SS
J8
5W
REQUIRED FOR 250V OPERATION.
NOTE: VOLTAGE SELECTORS J4 & J5 ARE NOT
25K 5%
CHECKBACK_TIP
ASSEMBLY
CHECKBACK_RLY
RMT_INIT
TRIPIN_2
RESERVE
TRIPIN_1
RMT_INIT
RESERVE
INDICATES NET NAMES FOR 9785.
*
*
*
*
*
*
*
(+12V)
TRIP SENT
RLY_OUT3
CR9-CR10R13-R14R15/R16R11-R12
SS_IN1
A
BOARD
(INV+)
( ) COMPONENT VALUES
11.5K 1%5K 5%22K 5%
RANGE
VOLTAGE
FUNCTION KEY INPUT
250V
75V 1W
1N4761A
1/4W
47.5K 1%
5W5W
20K 5%
20V 1W
1N4747A
1/4W3.25W
48V/125V
( )
( )
( )
( )
( )
( )
( )
( )
125V
125V
48V
48V
SELECT
SELECT
VOLTAGE
VOLTAGE
FUNCTION KEY INPUTS
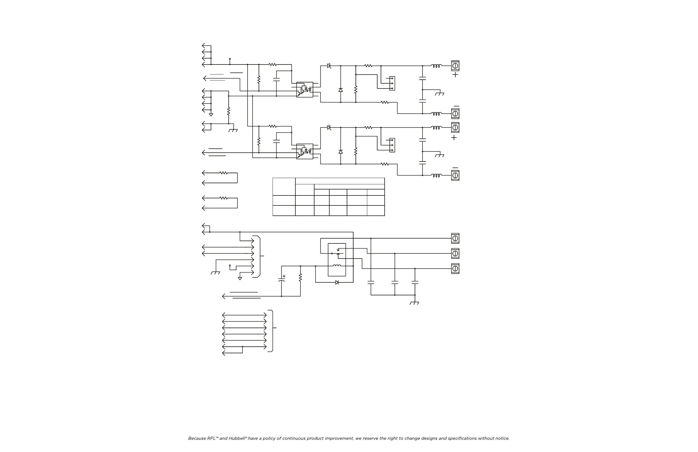
Figure 19-4. Schematic, RFL 9785 Solid-State Input I/O (Dw
g. No. D-106439-3-A)
RFL 9785 RFL Electronics Inc.
September 1, 2006 19-7 (19-8 Blank) (973) 334-3100

Table of Contents

Other manuals for RFL 9785

Related product manuals