EasyManua.ls Logo

Siemens Hipath 5000 - Page 170

Siemens Hipath 5000
1302 pages
To Next Page IconTo Next Page
To Next Page IconTo Next Page
To Previous Page IconTo Previous Page
To Previous Page IconTo Previous Page
Loading...
Boards for HiPath 3000 Nur für den internen Gebrauch
A31003-H3590-S100-7-7620, 06/2012
3-38 HiPath 3000/5000 V9, Service documentation
boards.fm
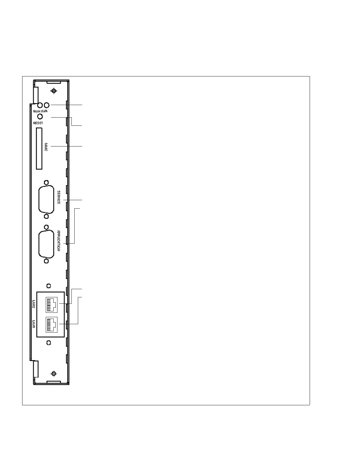
Central Board
Front panel
Figure 3-6 CBSAP - Front Panel
Two LEDs indicating the board status:
Run (green, flashing: 0.5 s on/0.5 s off) = correct, error-free op-
eration
Fail (red) = error encountered
Reset/reload switch
Slide-in shelf for MMC
Two Ethernet (10BaseT) LAN connectors (8-pin RJ45 jacks) via LIMS:
LAN2 (not assigned)
LAN1 (administration via HiPath 3000/5000 Manager E and CTI
functions)
The LAN interface status is indicated by two LEDs:
LED1:
Green = 100 Mbps online (link)
Yellow = 10 Mbps online (link)
Flashing = active
LED2 (green):
On = full-duplex (FDX)
Off = half-duplex
V.24 interfaces (9-pin SUB-D plug):
Service (X50) = for connecting the service PC
Application (X51) = for connecting a printer or application

Table of Contents

Other manuals for Siemens Hipath 5000

Related product manuals